

| Grad/Općina i naselje: | Barban - Barban |
|---|
| Godina izgradnje | 2026 |
|---|---|
| Broj vlastitih parkirnih mjesta | 1 |
| Broj soba | 1 |
| Broj kupaonica | 1 |
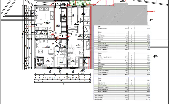
Malo povijesno mjesto Barban smješteno na visoravni koja dijeli Labinštinu od Puljštine i poznat je zbog konjičke manifestacije Trka na prestenac. Ovo malo ali slikovito srednjovjekovno naselje akropolskog tipa, ima izlaz na more u Raškom zaljevu. U ovoj prekrasnoj općini smješteno je još oko 70-tak sela i zaseoka. Upravo na toj lokaciji nalazi se garsonjera u novogradnji stambenepovršine 29 m2 sa izlazom na natkrivenu terasu i vrtom. Garsonjera u prizemlju sastoji se od predsoblja, kupaonice ,kuhinje+blagavaonica+dnevni boravak , terase , vrta . Prodaje se nenamješten. Cijena vrta 10 000 € Parkirno mjesto 5 000 € Zbog odlične lokacije, na pješačkoj udaljenosti od sadržaja potrebnih za ugodnu svakodnevicu, idealan je za mlade obitelji, osobe starije životne dobi ili kao investicija za najam. Za sve dodatne informacije i/ili razgledavanje, obratite se s povjerenjem licenciranim agenticama za nekretnine sa višegodišnjim iskustvom u prometu nekretnina: LORENA KOGEJ Agent s licencom Mob 091/738-7200 Telefon 052/639-276 lorena.kogej@dogma-nekretnine.com SANDRA MILETIĆ Agent s licencom Mob 091/988-5843 Telefon 052/639-276 sandra.miletic@dogma-nekretnine.com ID KOD AGENCIJE: IS1519536 Lorena Kogej Agent s licencom Mob: 091/738-7200 Tel: 052/639-276 E-mail: lorena.kogej@dogma-nekretnine.com www.dogma-nekretnine.com Sandra Miletić Agent s licencom Mob: 091/988-5843 Tel: 052/639-276 E-mail: sandra.miletic@dogma-nekretnine.com www.dogma-nekretnine.com
danijela@dogma-nekretnine.com
Fiorella la Guardia 6, 51000 Rijeka