

| Grad/Općina i naselje: | Nin - Zaton |
|---|
| Podaci o objektu | Novogradnja, Gradski vodovod, Gradska kanalizacija |
|---|---|
| Balkon/Lođa/Terasa | Lođa |
| Komunalije | Gradski vodovod, Gradska kanalizacija |
| Sustav grijanja | Sustav grijanja, klimatizacije i ventilacije |
| Broj vlastitih parkirnih mjesta | 2 |
| Broj soba | 4 |
| Broj kupaonica | 3 |
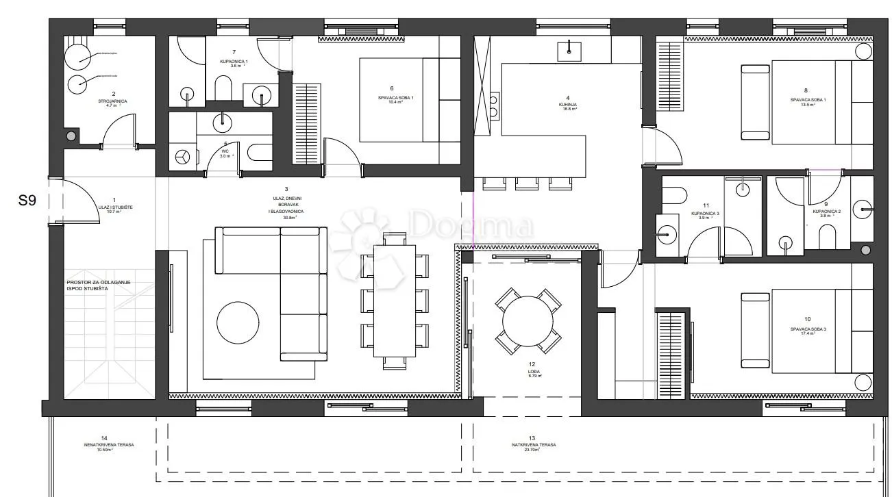
Ekskluzivni penthouse s krovnom terasom od 146 m² – Zaton U Zatonu, samo pedesetak metara od mora, ova novogradnja donosi deset stanova oblikovanih tako da svaki ima svoju posebnu priču. Dok se prizemlja otvaraju u zelene vrtove, a katovi uživaju u prostranim terasama, dvoetažni stanovi poput A9 osvajaju svojom krovnom scenom – privatnim terasama koje pružaju doživljaj života iznad svakodnevice. Stan A9, s neto površinom od 193,19 m², raspoređen je na dvije etaže. Donja etaža nudi raskošan dnevni boravak s blagovaonicom od 30,8 m², modernu kuhinju od 16,8 m², tri spavaće sobe i tri kupaonice, dodatni WC, loggiu i dvije terase. Svaki kutak ovog stana osmišljen je za udobnost i eleganciju. No prava čarolija dolazi na gornjoj etaži: krovna terasa od 146 m² s priključcima za struju, vodu, ljetnu kuhinju i jacuzzi. To je prostor gdje jutra počinju uz more, a večeri završavaju pod zvijezdama. Stan uključuje spremište te jedno natkriveno i jedno nenatkriveno parkirno mjesto. Opremljen je podnim grijanjem, klimatizacijom, protuprovalnim vratima, električnim roletama i videoportafonom. Dostupna je i opcija potpuno namještenog interijera. Izvođač zadržava pravo izmjene planova, materijala i značajki bez obveze ili prethodne obavijesti. Sve dimenzije, nacrti i materijali su približni i podložni promjenama prema nahođenju izvođača. Kupac ne plaća porez na promet nekretninama. Za sve informacije i dogovor oko razgledavanja, stojim na raspolaganju. Aurelija Kaniški 00385995472989 e-mail: aurelija.kaniski@dogma-nekretnine.com ID KOD AGENCIJE: DA100065641 Aurelija Kaniški Agent s licencom Mob: 099/547-2989 Tel: 042/562-017 E-mail: aurelija.kaniski@dogma-nekretnine.com www.dogma-nekretnine.com
danijela@dogma-nekretnine.com
Fiorella la Guardia 6, 51000 Rijeka