

| Grad/Općina i naselje: | Fažana - Valbandon |
|---|
| Godina izgradnje | 2025 |
|---|---|
| Podaci o objektu | Novogradnja |
| Broj soba | 4 |
| Broj kupaonica | 2 |
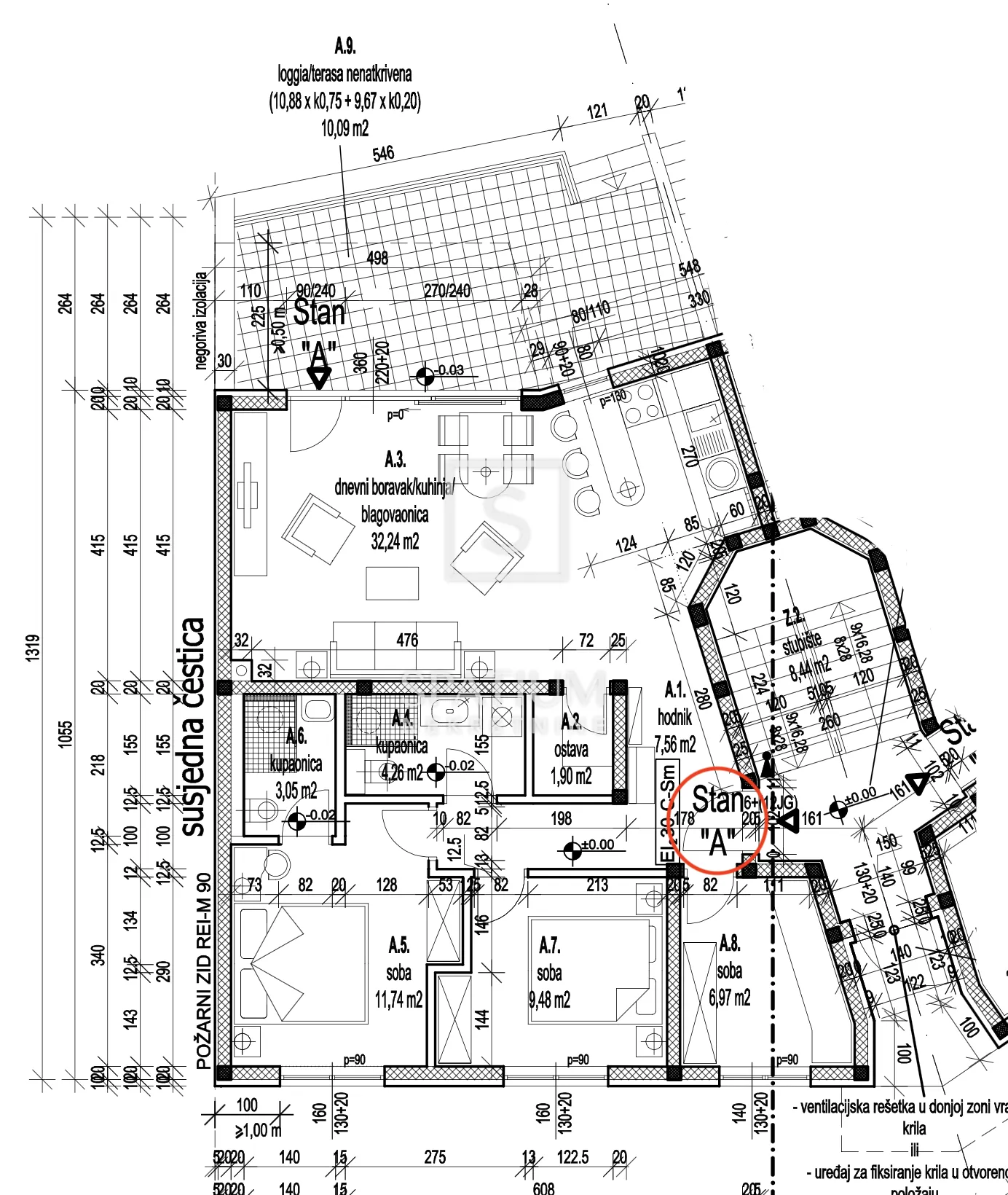
FAŽANA, u ponudi imamo trosoban stan u prizemlju veličine 87.29 m2. Odlikuje funkcionalnim rasporedom prostorija i kvalitetnom opremom. RASPORED PROSTORIJA: - 3 spavaće sobe (11.74m² , 9.48m² , 6.97m²) - dnevni boravak s kuhinjom i blagovaonicom: 32,24 m² - 2 kupaonice:( 4.26 m² i 3.05 m²) - hodnik: 7,56 m² - prostrana terasa: 20,55 m² (obračunski 10,09 m²) -ostava TEHNIČNA OPREMA - Električno podno grijanje u cijelom stanu - Dimnjak - 3 inverter klima uređaja - Protuprovalna ulazna vrata - ALU stolarija na staklenim stijenama - PVC prozori - Komarnici i električne roletne - Stan opremljen kvalitetnom keramikom i sanitarijama - Pripadajuće parkirno mjesto (1 PM) Fažana je slikovito primorsko naselje smješteno na zapadnoj obali Istre, nadomak Pule. Poznata po dugoj tradiciji ribarstva i prerade ribe, danas se razvija kao mirno turističko odredište s neposrednim pristupom Nacionalnom parku Brijuni. Mjesto nudi osnovnu infrastrukturu i sadržaje potrebne za svakodnevni život, a blizina većih gradova omogućuje dobru povezanost i dostupnost svih dodatnih usluga. Za dodatne informacije i razgled nekretnine obratite se s povjerenjem. Roberta Poropat agent s licencom +385 95 528 3152 roberta@spatium.hr Spatium nekretnine +385 51 272 903 info@spatium.hr ID KOD AGENCIJE: 5762 Roberta Poropat Agent s licencom Mob: +385 95 528 3152 Tel: +385 51 272 903 E-mail: roberta@spatium.hr www.spatium.hr
info@spatium.hr
Šetalište Andrije Kačića Miošića 5, 51000 Rijeka