

| Grad/Općina i naselje: | Novi Zagreb - Zapad - Blato |
|---|
| Stambena površina (u m²) | 1792 |
|---|
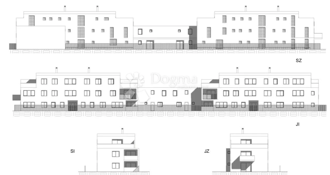
Građevinsko zemljište s idejnim projektom – 14 stanova, Novi Zagreb (Blato) Na prodaju je građevinsko zemljište površine 1.792 m², smješteno na lokaciji koja bilježi kontinuirani rast potražnje i sve intenzivniji razvoj stambenih projekata. Za zemljište je izrađen idejni projekt za izgradnju moderne stambene zgrade s 14 stanova, što investitoru omogućuje brži ulazak u realizaciju i značajnu uštedu vremena i troškova pripreme. Sva infrastruktura (struja, voda, kanalizacija, plin) nalazi se neposredno uz teren – spremno za priključenje. Ključne prednosti lokacije: • neposredna blizina Arena Centra i Arene Zagreb • nekoliko minuta do Avenue Mall-a i svih urbanih sadržaja • mirno, rezidencijalno okruženje idealno za obiteljski život • blizina vrtića, škola i javnog prijevoza • brz pristup Jadranskoj aveniji i obilaznici • izvrsna povezanost s centrom grada Ovo zemljište predstavlja kombinaciju odlične mikrolokacije, spremne projektne dokumentacije i optimalne kvadrature za razvoj profitabilnog stambenog projekta. Za više informacija i termin razgleda, kontaktirajte nas! NIKA MAMILOVIĆ GSM: +385981971210 MAIL: nika.mamilovic@dogma-nekretnine.com DRAGO PALIĆ GSM: +385914070777 MAIL: drago.palic@dogma-nekretnine.com ID KOD AGENCIJE: ZG886856 Nika Mamilović Asistent u posredovanju Mob: 098/197-1210 Tel: 01/647-3011 E-mail: nika.mamilovic@dogma-nekretnine.com www.dogma-zagreb.com Drago Palić Asistent u posredovanju Mob: 091/407-0777 Tel: 01/647-3011 E-mail: drago.palic@dogma-nekretnine.com www.dogma-zagreb.com
danijela@dogma-nekretnine.com
Fiorella la Guardia 6, 51000 Rijeka