

| Grad/Općina i naselje: | Barban - Jurićev Kal |
|---|
| Podaci o objektu | Gradski vodovod |
|---|---|
| Stambena površina (u m²) | 863 |
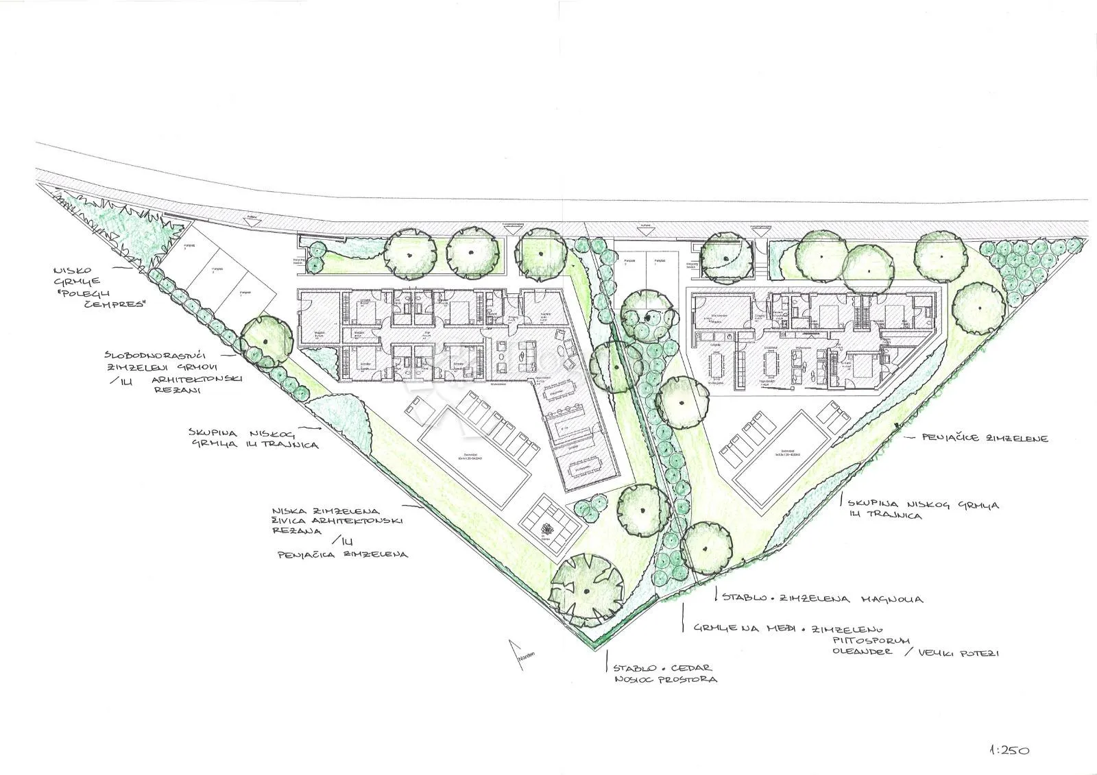
Jurićev Kal – građevinsko zemljište s projektom i građevinskom dozvolom za elegantnu vilu s bazenom U mirnom i ugodnom ambijentu Jurićevog Kala smješteno je građevinsko zemljište površine 863 m², s pripremljenom dokumentacijom za realizaciju moderne samostojeće vile s bazenom. Projektirana kuća ukupne površine 168,13 m² osmišljena je s naglaskom na funkcionalnost, privatnost i suvremeni stil života. Tlocrt obuhvaća ulazni prostor, gospodarsku prostoriju, strojarnicu / spremište, otvoreni dnevni dio s kuhinjom i blagovaonicom, hodnik, tri spavaće sobe, tri kupaonice, dodatno spremište i zimski vrt. Ova nekretnina predstavlja odličnu priliku za kupce koji traže gotov koncept za izgradnju elegantne kuće za privatno korištenje, odmor ili turistički najam. Već pripremljena dokumentacija dodatna je prednost jer budućem vlasniku omogućuje jednostavniji nastavak realizacije projekta. Ključne značajke: Jurićev Kal zemljište 863 m² projektirana kuća 168,13 m² samostojeća vila s bazenom 3 spavaće sobe 3 kupaonice zimski vrt projekt i građevinska dozvola! Odlična prilika za kupce koji traže manju luksuznu kuću s bazenom na mirnoj lokaciji, uz već pripremljenu dokumentaciju i jasan koncept buduće gradnje. Za sve upite stojim na raspolaganju! Paula Bizjak, asistent u posredovanju 097-601 8779 paula.bizjak@dogma-nekretnine.com ID KOD AGENCIJE: IS1520313 Paula Bizjak Asistent u posredovanju Mob: 097/601-8779 Tel: 052 770 811 E-mail: paula.bizjak@dogma-nekretnine.com www.dogma-istra.com
danijela@dogma-nekretnine.com
Fiorella la Guardia 6, 51000 Rijeka