Učitavanje


| Grad/Općina i naselje: | Marčana - Krnica |
|---|
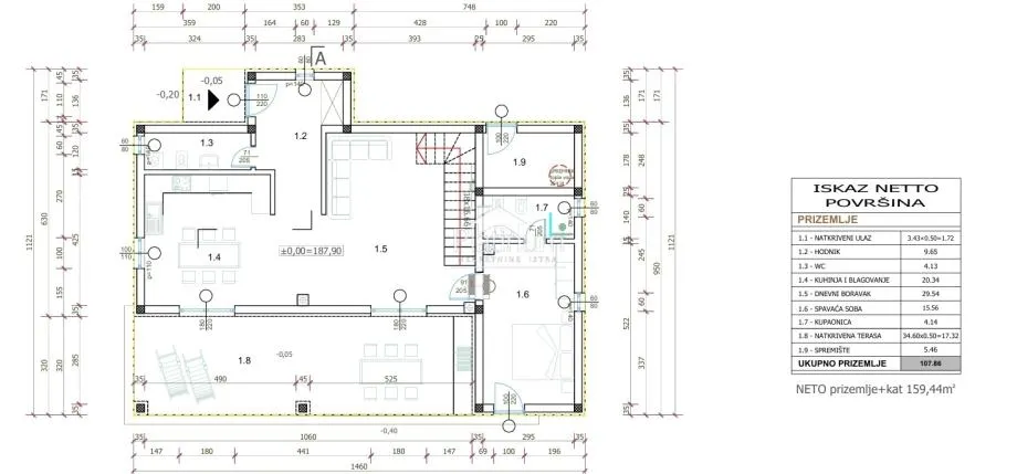
U mirnom dijelu Krnice, prodaje se ovo građevinsko zemljište s projektom i građevinskom dozvolom. Kuća prema projektu sastoji se vod prizemlja i kata ukupne netto površine 159,44m2 koja se sastoji od tri spavaće sobe, tri kupatila, wc-a, kuhinje, balkona, spremišta, natkrivene terase, pomoćne zgrade i strojarnice 31,12m2 te bazena od 35m2.
Voda i struja nalaze se na zemljištu.
Idealno mjesto za miran život ili za iznajmljivanje.
kontakt 00385951987708
**Zainteresirani kupci mogu dobiti potrebne informacije o oglašenoj nekretnini i razgledati istu putem naše agencije isključivo uz prethodno potpisivanje ugovora o posredovanju o prometu nekretnina ili Zapisnik o razgledavanju nekretnina.**