

| Grad/Općina i naselje: | Medulin - Medulin |
|---|
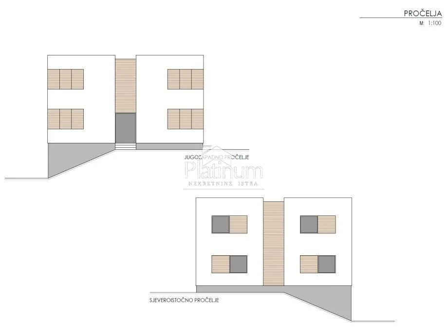
U okolici Pule u mirnom mjestu prodaje se zemljište sa projektom, građevinskom dozvolom i plaćenim doprinosima. Plaćen i priključak struje.
Predviđena je izgradnja višestambene zgrade sa četiri stana veličine 75,08 m2, 71,46 m2 u prizemlju i 74,99m2 , 71,46m2 na katu. U dvorištu su predviđena četiri natkrivena i četiri nenatkrivena prakirna mjesta (svakom stanu pripadaju po dva). Svakom stanu bi pripadalo po jedno spremište površine 10,55m2.
kontakt 00385951987708
**Zainteresirani kupci mogu dobiti potrebne informacije o oglašenoj nekretnini i razgledati istu putem naše agencije isključivo uz prethodno potpisivanje ugovora o posredovanju o prometu nekretnina ili Zapisnik o razgledavanju nekretnina.**