

| Grad/Općina i naselje: | Fažana - Fažana |
|---|
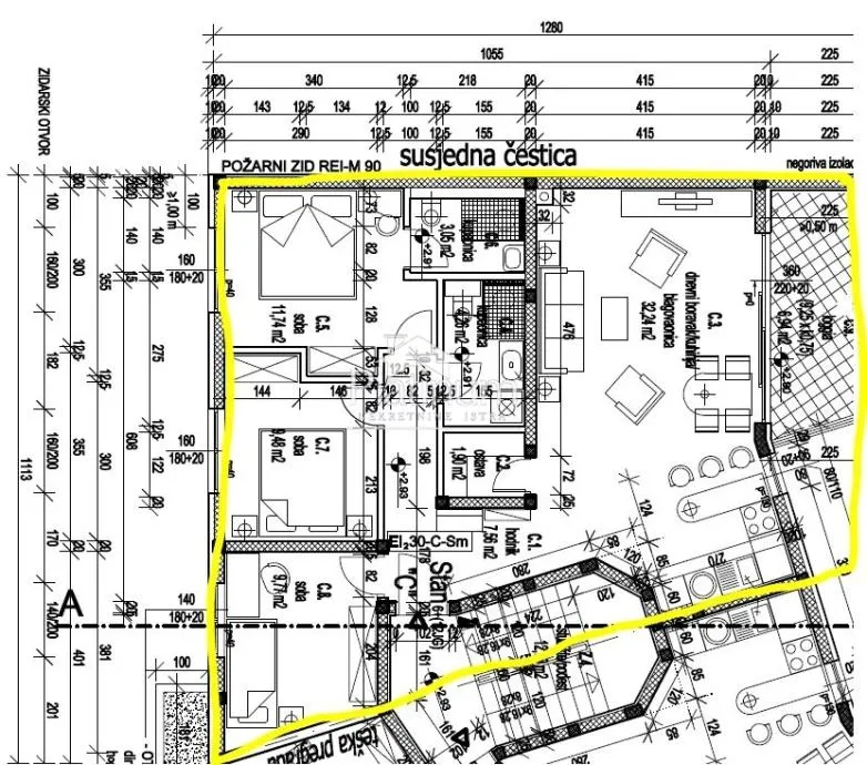
U Valbandonu, okolici Fažane započela je gradnja zgrade sa osam stanova. Dva stana identične kvadrature prodaju se na prvom katu, a sastoje se od hodnika 7,56m2, ostave 1,90m2,dnevnog boravka s kuhinjom i blagovaonom 32,24m2, kupaonice 4,26m2, kupaonice 3,05m2, sobe 11,74 m2, sobe 9,48 m2, sobe 9,77m2 i loggie 6,94m2.
Zgrada će biti modernog dizajna, podovi kvalitetne keramičke pločice (terasa protuklizne) i laminat. U svim stanovima biti će montirane inverterske klime, vanjska stolarija PVC sa roletnama s električnim podizačima , a izlazi na terasu klizne stijene. Parlafon, utičnice, prekidači, satelitska i zemaljska antena, sanitarije, bojler, walk-in tuš i protupožarna/provalna vrata.
Vanjska fasada demit 10 cm mineralne vune sa završnim slojem akrilne žbuke.
Plaćanje po fazama gradnje.
Dovršetak 2026
kontakt 00385951987708
**Zainteresirani kupci mogu dobiti potrebne informacije o oglašenoj nekretnini i razgledati istu putem naše agencije isključivo uz prethodno potpisivanje ugovora o posredovanju o prometu nekretnina ili Zapisnik o razgledavanju nekretnina.**