

| Grad/Općina i naselje: | Labin - Labin |
|---|
| Podaci o objektu | Gradski vodovod |
|---|---|
| Stambena površina (u m²) | 1361.55 |
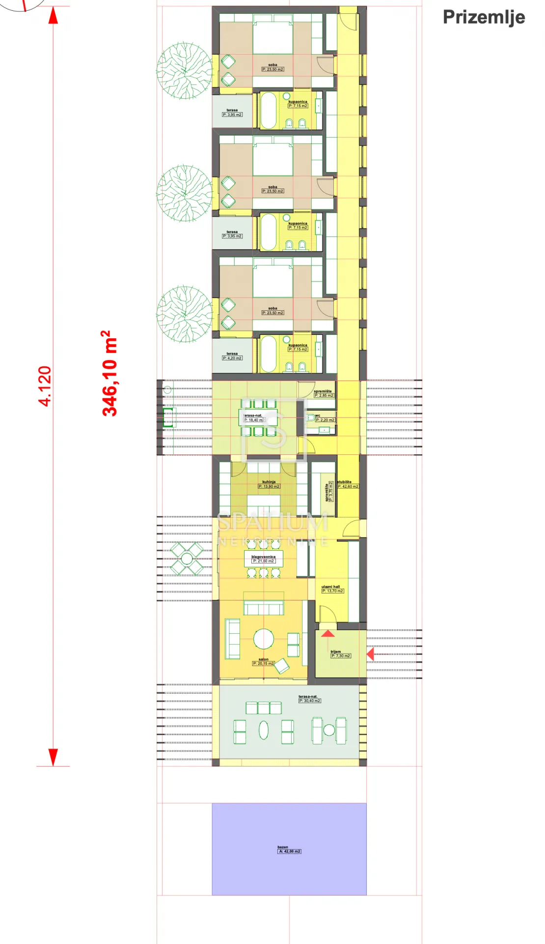
LABIN, CERE, u ponudu smo dobili zemljište površine 1380 m2 koje nalazi uz glavnu cestu i ima izrađen pristupni put. Voda je dostupna na dva mjesta što omogućuje postavljanje bunara ili vodene pumpe, a struja je blizu samog terena. Uz zemljište dolazi i idejni plan za izgradnju moderne obiteljske kuće površine 320 m2, prilagođene udobnom životu u harmoniji s prirodom. Ova lokacija pruža savršeno okruženje za miran obiteljski život, a istovremeno omogućuje blizinu svih sadržaja u Labinu. Labin je šarmantni gradić smješten na brežuljku iznad Rapca, poznat po svojoj bogatoj povijesti, kulturnoj baštini i slikovitim ulicama starog grada. Njegova povijesna jezgra oduševljava kamenim zgradama, uskim uličicama i jedinstvenim pogledom na Jadransko more. Labin je prava oaza za ljubitelje umjetnosti i kulture, s brojnim galerijama, muzejima i povijesnim spomenicima. Osim kulturnog bogatstva, blizina prekrasnih plaža u Rapcu čini ga idealnim mjestom za opuštanje i uživanje u prirodnim ljepotama. Gradić ima raznovrsne restorane i kafiće, te obilje sadržaja za aktivan život, od biciklističkih staza do pješačkih ruta. Za ostale informacije obratite se s povjerenjem. Petra Juričić Agent s licencom +385 91 185 1211 petra@spatium.hr Spatium nekretnine + 385 51 272 903 info@spatium.hr ID KOD AGENCIJE: 4245 Petra Juričić Agent s licencom Mob: +385 91 185 1211 Tel: +385 51 272 903 E-mail: petra@spatium.hr www.spatium.hr
info@spatium.hr
Šetalište Andrije Kačića Miošića 5, 51000 Rijeka