

| Grad/Općina i naselje: | Šibenik - okolica - Lozovac |
|---|
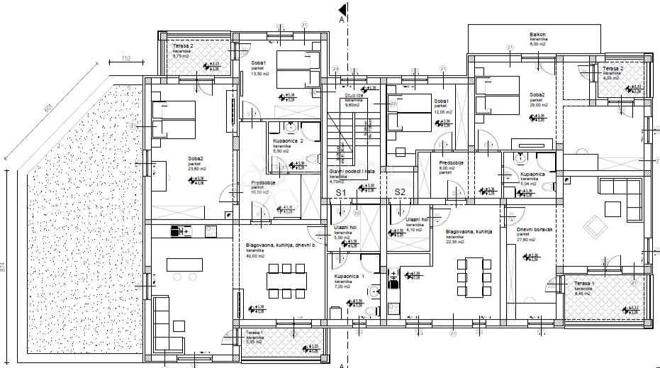
| Podaci o objektu | Novogradnja, Gradski vodovod |
|---|---|
| Balkon/Lođa/Terasa | Lođa |
| Komunalije | Gradski vodovod |
| Broj soba | 8 |
| Broj kupaonica | 4 |
| Stambena površina (u m²) | 240 |
LOZOVAC – Iznajmljuju se dvije etaže modernog objekta (u roh-bau fazi), dvije etaže po 240 m², s mogućnošću stambene ili uredske namjene! Objekt se sastoji od prizemlja, prvog i drugog kata s otvorenom galerijom, te prostranog otvorenog parkirališta ispred zgrade. U najam se daju posljednje dvije etaže. Planirano je formiranje četiri odvojene jedinice, svaka površine približno 120 m² – po dvije na svakoj etaži. Prostorije se mogu koristiti u stambene ili uredske svrhe, pri čemu za uredsku uporabu nije potreban status poslovnog prostora. Trenutno se traži najbolje projektno rješenje i potencijalni zakupaci, kako bi se tijekom izgradnje i završnih radova sve izvelo u skladu s planom i u jednoj fazi. Obje etaže trenutačno su u roh-bau stanju. Za sve dodatne informacije ili dogovor oko razgledavanja, slobodno me kontaktirajte. ILIJA RAČUNICA Mob./Whatsapp: +385 91 4957 567 Email: ilija.racunica@dogma-nekretnine.com O OBRTIMA KOJI SE MOGU OBAVLJATI U STAMBENIM PROSTORIJAMA: 17401.01 Ručna izrada gotovih tekstilnih proizvoda od svih vrsta tekstilnih materijala,uključujući proizvodnju od pletenih i kukićanih tkanina - popluna,perina,jastuka,pufova 17541.03 Izrada ukrasnog pribora: vrpci,resa,pompona (loptica)... 17541.04 Izrada čipki u vrpcama ili u motivima vezenih tkanina 17720.01 Izrada pletenih i kukičanih pulovera,jakni, prsluka i sl.proizvoda - ručno pletenje 18100.01 Izrada po mjeri odjeće od kože i imitacije kože 18222.01 Izrada po mjeri ostale vanjske odjeće - šivanje po mjeri 18230.01 Izrada po mjeri šivanog rublja od tkanog, pletenog ili kukičanog tekstila,čipke itd.za muškarce,žene,djecu - izrada steznika i pojaseva 18242.01 Izrada šešira i kapa 18242.02 Izrada ostalih odjevnih predmeta: rukavica,remena,šalova,kravata; mrežica za kosu 18242.03 Izrada krznenih pokrivala za glavu 18300.02 Izrada proizvoda od krzna 19200.02 Izrada remena za satove,osim metalnih 19302.00 Izrada gornjih dijelova obuće i papuča 20510.00 Izrada okvira za slike 21250.03 Izrada sjenila za svjetiljke od papira i kartona 25240.02 Izrada sjenila za svjetiljke od plastike 26130.00 Slikanje na staklu 26150.03 Izrada staklenih sjenila za svjetiljke 26210.02 Oslikavanje figura i drugih ukrasnih keramičkih predmeta 36500.01 Izrada lutaka,odjeće i pribora za lutke 36500.02 Izrada životinjskih igračaka 36630.05 Izrada i presvlačenje dugmadi 36630.10 Izrada raznovrsnih proizvoda - izrada predmeta za uspomenu i suvenira,izrada umjetnog cvijeća od tkanine i papira i izrada cvjetnih aranžmana od umjetnog i suhog cvijeća 52700.01 Popravak predmeta za osobnu uporabu i kućanstvo ukoliko nisu povezani s proizvodnjom,trgovinom na veliko ili trgovinom na malo 52720.00 Popravak električnih aparata za kućanstvo, uključujući radioopremu,televizijsku opremu i ostalu audioopremu i videoopremu 52730.00 Popravak satova i nakita 52740.00 Popravci - precizno mehaničarski za optičke instrumente 52740.02 Krpanje i manje prepravljanje odjeće,te popravak čarapa 72100.00 Pružanje savjeta o računalnoj opremi (hardwave-u) 72200.00 Savjetovanje i pribavljanje programske opreme (software-a) 74120.00 Računovodstveni,knjigovodstveni poslovi te poslovi poreznog savjetovanja 74130.00 Istraživanje tržišta i ispitivanje javnog mijenja 74200.01 Savjetovanje i drugi poslovi u arhitektonskoj djelatnosti 74200.02 Izrada nacrta strojeva i industrijskih postrojenja 74200.03 Inženjering,projektni menadžment i projektiranje u arhitekturi i građevinarstvu 74200.04 Izrada projekata za kondicioniranje zraka, hlađenje,projekata sanitarne kontrole i kontrole zagađivanja i projekata akustičnosti 74830.04 Prevođenje 74840.02 Poslovno posredništvo tj.dogovaranje kupnje ili prodaje manjih ili srednjih količina robe 74840.04 Modno dizajniranje tkanine,odjeće,obuće, nakita,namještaja i druge unutrašnje dekoracije,ostalih modnih proizvoda,kao i drugihproizvoda za osobnu potrošnju 74840.06 Djelatnost unutrašnjih dekoratera 74840.08 Djelatnost dizajnera štandova 93020.02 Masaža lica, manikiranje, pedikiranje, šminkanje... ID KOD AGENCIJE: DA100066303 Ilija Računica Asistent u posredovanju Mob: 091/495-7567 Tel: 022/646-360, 022/646-361 E-mail: ilija.racunica@dogma-nekretnine.com www.dogma-dalmacija.com
danijela@dogma-nekretnine.com
Fiorella la Guardia 6, 51000 Rijeka