

| Grad/Općina i naselje: | Viškovo - Marinići |
|---|
| Komunalije | Gradski vodovod, Gradska kanalizacija |
|---|---|
| Podaci o objektu | Gradska kanalizacija |
| Broj soba | 5 |
| Stambena površina (u m²) | 451 |
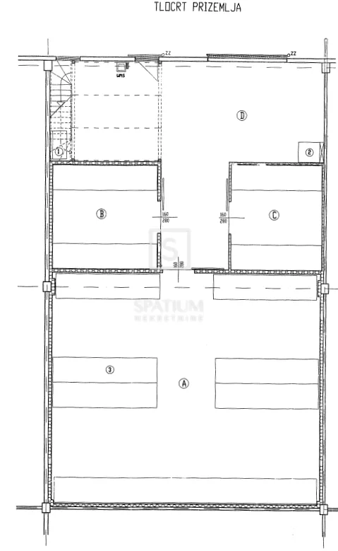
VIŠKOVO, MARINIĆI, u ponudi je funkcionalan skladišno-poslovni prostor ukupne površine 451 m2. Skladište raspolaže kapacitetom od ukupno 300 paletnih mjesta od čega je 200 smješteno u regalni sustav unutar rashladnih komora, što omogućuje fleksibilnost ovisno o vrsti robe i načinu manipulacije. Prostor uključuje i zajednički dio površine 18 m² te dodatnih 70 m² ambijentalnog skladišnog prostora, idealnog za robu koja ne zahtijeva posebne temperaturne uvjete. Na katu se nalazi uredski dio koji obuhvaća kancelariju, garderobu i sanitarni čvor, čime je osigurana potpuna funkcionalnost za svakodnevno poslovanje i rad zaposlenika. Ova nekretnina predstavlja izvrsnu priliku za tvrtke koje traže kombinaciju skladišnog i uredskog prostora na jednoj lokaciji, uz optimalnu iskoristivost i praktičan raspored. UVJETI NAJMA: POLOG: 2 mjesečna zakupa PLAĆANJE UNAPRIJED: 1 mjesec AGENCIJSKA PROVIZIJA: 1 mjesečni najam Područje općine Viškovo smješteno je sjeverozapadno od Rijeke na površini od svega dvadesetak kvadratnih kilometara. Blizina Rijeke, Opatije, graničnog prijelaza sa Slovenijom, ljepote prirode i pogodnosti življenja u malom mjestu obilježja su koja ovaj kraj čine sve privlačnijim. Viškovo je danas upotpunjeno svim sadržajima neophodnim suvremenom načinu življenja i poslovanja. U središtu mjesta nalaze se: crkva, škola, dječji vrtić, pošta, zdravstvena stanica, ljekarna, knjižnica, banke, poslovnica FINA-e, kreditno-štedna i osiguravajuća društva, benzinske crpke te niz obrtničko-uslužnih djelatnosti. Za ostale informacije obratite se s povjerenjem. Ivana Pavlović asistent u posredovanju +385998536911 ivana@spatium.hr Spatium nekretnine +385 51 272 903 info@spatium.hr ID KOD AGENCIJE: 7651 Ivana Pavlović Asistent u posredovanju Mob: +385 99 853 6911 Tel: +385 51 272 903 E-mail: ivana@spatium.hr www.spatium.hr
info@spatium.hr
Šetalište Andrije Kačića Miošića 5, 51000 Rijeka