

| Grad/Općina i naselje: | Pula - Kaštanjer |
|---|
| Podaci o objektu | Gradski vodovod, Gradska kanalizacija |
|---|---|
| Komunalije | Gradski vodovod, Gradska kanalizacija |
| Plin | Da |
| Balkon/Lođa/Terasa | Balkon |
| Godina izgradnje | 2027 |
| Broj vlastitih parkirnih mjesta | 1 |
| Ostali objekti i površine | Bazen |
| Broj soba | 3 |
| Broj kupaonica | 1 |
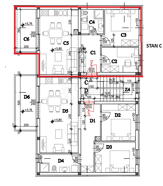
Na prodaju stan u modernoj zgradi s ukupno 4 stana, smještenoj na izvrsnoj lokaciji na Kaštanjeru – svega 1500 m od centra grada. Mirno okruženje idealno za svakodnevni život, uz blizinu svih potrebnih sadržaja. Zgradu karakterizira funkcionalan raspored – dnevni boravci orijentirani su prema zapadu, što osigurava obilje prirodnog svjetla i ugodne zalaske sunca, dok su spavaće sobe smještene na istočnoj strani za miran i kvalitetan odmor. Stan je opremljen modernim sustavom grijanja i hlađenja putem klima uređaja (dizalica topline), što omogućuje ugodnu temperaturu tijekom cijele godine uz energetsku učinkovitost. Kvalitetna gradnja i dobra toplinska izolacija dodatno doprinose komforu stanovanja. U uređenju su predviđeni kvalitetni materijali – parket u sobama i dnevnim prostorima, te keramika u ostalim prostorijama, balkonima i pomoćnim dijelovima. Zgradi pripada ukupno 7 parkirnih mjesta (2 garažna i 5 vanjskih) i 4 spremišta, koji se prodaju zasebno i nisu uključeni u cijenu stana. Odlična lokacija koja nudi savršen balans između blizine centra i mirnog okruženja za više informacija i razgled slobodno me kontaktirajte! Filip Crnjac Agent s licencom filip.crnjac@dogma-nekretnine.com +385 91 600 1216 ID KOD AGENCIJE: IS1520842 Filip Crnjac Agent s licencom Mob: 091/600-1216 Tel: 052 645 444 E-mail: filip.crnjac@dogma-nekretnine.com www.dogma-istra.com
danijela@dogma-nekretnine.com
Fiorella la Guardia 6, 51000 Rijeka