

| Grad/Općina i naselje: | Omišalj - Njivice |
|---|
| Podaci o objektu | Gradski vodovod |
|---|---|
| Stambena površina (u m²) | 672 |
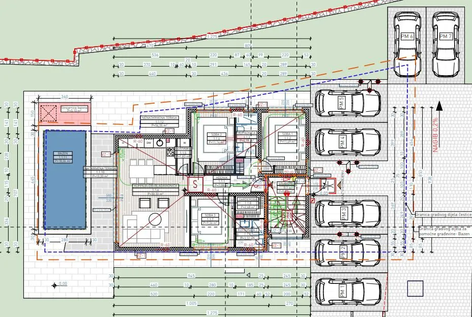
**Njivice, prodaja građevinskog zemljišta** Prodajemo građevinsko zemljište površine 672 m² u Njivicama, pripremljeno za gradnju. Zemljište je pravilnog oblika i nudi djelomičan pogled na more. Za zemljište je izrađen geodetski elaborat, glavni projekt, a uskoro se očekuje i pravomoćnost građevinske dozvole. Projektom je predviđena gradnja objekta sa četiri stambene jedinice: - **Prizemlje**: Apartman površine 80 m² sa okućnicom, bazenom i dva parkirna mjesta. - **Prvi kat**: Dva apartmana, jedan površine 50 m² i drugi 70 m², svaki sa okućnicom i dva parkirna mjesta. - **Drugi kat**: Prostrani apartman površine 110 m² sa krovnom terasom od 60 m² i dva parkirna mjesta. Zemljište se nalazi na mirnoj lokaciji, 500 m od mora. PDV je uračunat u cijenu, te kupac ne plaća porez na promet nekretnina. Za više informacija ili dogovor oko razgledavanja, slobodno nas kontaktirajte! ID KOD AGENCIJE: 300621003-1360 Mirela Petrović Prodajni predstavnik Mob: +385 91 641 3300 Tel: +385 51 309 703 Licenca: 73/2015 E-mail: m.petrovic@remax-krk.hr remax-centarnekretnina.com Jelena Sindičić Prodajni predstavnik Mob: +385 91 641 3138 Tel: +385 51 309 703 Licenca: 160/2023 E-mail: j.sindicic@remax-krk.hr remax-centarnekretnina.com
info@remax-centarnekretnina.com
Krešimirova 12A, 51000 Rijeka