

| Grad/Općina i naselje: | Vodice - Vodice |
|---|
| Podaci o objektu | Novogradnja, Gradski vodovod |
|---|---|
| Balkon/Lođa/Terasa | Terasa |
| Broj soba | 4 |
| Broj kupaonica | 2 |
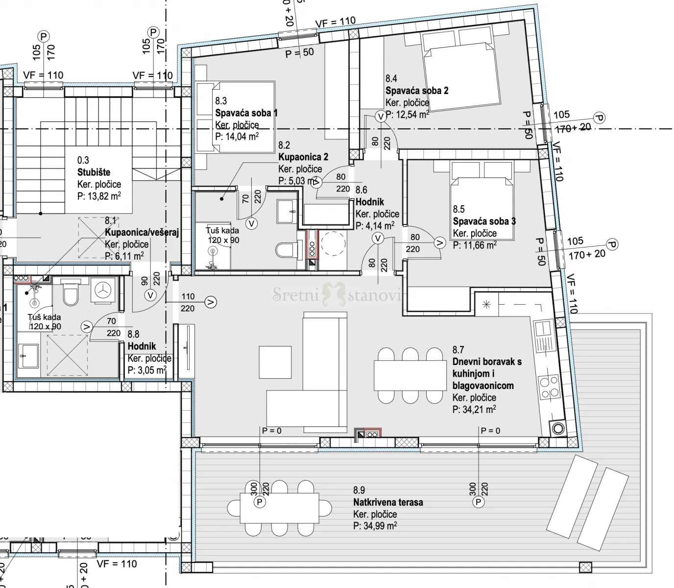
Prodaje se penthouse stan s pogledom na more na 2. katu (zadnji kat) u modernoj novogradnji u gradu Vodice, na lijepoj lokaciji u blizini svih sadržaja potrebnih za ugodan život - trgovine, ugostiteljski objekti, supermarketi. Do centra grada Vodice i mora ima oko 3 minute vožnje, to jest oko 12 minuta hoda, do plaže Male Vrulje oko 6 min vožnje (oko 20min hoda), a Plave plaže oko 6 min vožje (oko 25 min hoda). Osnovna škola je na oko 3 minute vožnje (oko 15 minuta hoda), a vrtić se nalazi na oko 6 minuta vožnje (oko 25min hoda). Ovaj stan u novogradnji Vodice sastoji se od ulaznog hodnika, 2 kupaonice, degažmana, 3 spavaće sobe i velikog dnevnog boravka s kuhinjom i blagovaonom, iz kojega se izlazi na veliku natkrivenu terasu s prekrasnim pogledom na more. Unutarnji dio stana ima 90,78m2, dok natkrivena terasa ima 34,99 m2. Grijanje/hlađenje putem klima uređaja s unutarnjom jedinicom u svakoj sobi. Električno podno grijanje prolazi kroz kupaone (moguća ugradnja u ostatku stana po želji kupca, ovisno o fazi gradnje). Moguća je kupnja 2 parkirna mjesta. Parkirna mjesta kreću se od 12,50 m2 do 18,50 m2. __________ EN Exclusive Sea-View Penthouse With a Large Terrace in a Modern New Development in Vodice Penthouse apartment with sea view for sale on the 2nd floor (top floor) of a modern new building (ground floor+ 2 floors) in the town of Vodice, situated in a nice location close to all amenities necessary for comfortable living – shops, cafés, restaurants, and supermarkets. The town center of Vodice and the sea are approximately a 3-minute drive away (around a 12-minute walk). Male Vrulje Beach is about a 6-minute drive (approx. 20-minute walk), while Plava Beach is also about a 6-minute drive (approx. 25-minute walk). The primary school is approximately a 3-minute drive (15-minute walk), and the kindergarten is about a 6-minute drive (25-minute walk). This newly built apartment in Vodice consists of an entrance hall, 2 bathrooms, a hallway, 3 bedrooms, and a spacious open-plan living room with kitchen and dining area, leading onto a large covered terrace with a beautiful sea view. The internal living area measures 90.78 m², while the covered terrace extends to 34.99 m². Heating and cooling are provided by air-conditioning units, with an indoor unit installed in each room. The bathrooms are equipped with electric underfloor heating (installation in the remaining areas of the apartment is possible upon buyer’s request, depending on the stage of construction). The purchase of two parking spaces is available. Parking spaces range from 12.50 m² to 18.50 m². ID KOD AGENCIJE: 7857 Andrea Zeneral Mob: 099 673 1949 Tel: 051/301-502 E-mail: andrea@sretnistanovi.hr www.sretnistanovi.hr
andrea@sretnistanovi.hr
Pul Vele crikve 1, 51000 Rijeka