

| Grad/Općina i naselje: | Rijeka - Centar |
|---|
| Podaci o objektu | Lift, Gradski vodovod, Gradska kanalizacija |
|---|---|
| Komunalije | Gradski vodovod, Gradska kanalizacija |
| Sustav grijanja | Sustav grijanja, klimatizacije i ventilacije |
| Klima uređaj | Da |
| Broj soba | 1 |
| Stambena površina (u m²) | 18 |
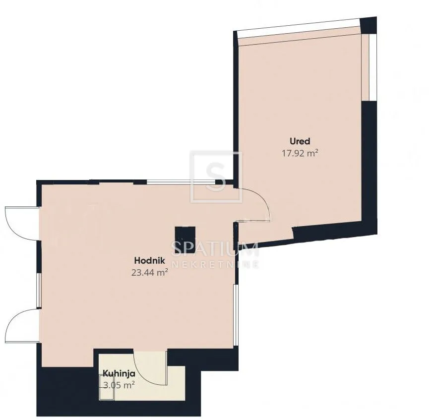
RIJEKA, na odličnoj lokaciji, svega par minuta hoda od Korza, iznajmljuje se poslovni prostor površine 18 m², smješten na šestom katu uredne i novije poslovne zgrade s liftom. Zgrada je uredna i održavana, a zbog svoje centralne pozicije u blizini svih važnijih sadržaja (Korzo, javni prijevoz, banke, pošta, trgovine), prostor je idealan za razne djelatnosti poput ureda, knjigovodstava, odvjetničkih ureda ili konzultantskih firmi. Prostor se sastoji od: ⦁ uredska prostorija kvadrature 17,92 m² ⦁ ulaznog hodnika 23,44 m² ⦁ čajne kuhinje (3,05 m²) smještene uz ulaz, ⦁ toaleta. Ulazni hodnik, kuhinja, i toalet se dijele s još dva manja ureda. Dodatno, postoji još jedan sanitarni čvor na etaži koji je dostupan na korištenje. Posebna pogodnost je mogućnost najma i u manjim cjelinama. Rijeka , najveća je hrvatska luka, treći po veličini grad u Republici Hrvatskoj te administrativno središte Primorsko-goranske županije. Rijeku je mađarska vlada još u 18. i 19. stoljeću zbog idealnog zemljopisnog položaja i dubine mora u Kvarnerskom zaljevu razvila u jednu od najvećih europskih luka i moćno industrijsko središte. Na Jadranu je poznata i riječka bura, hladan i suh vjetar sjeveroistočnog smjera koji povoljno djeluje na čistoću riječkog zraka. Za sve ostale informacije obratite se agentu sa povjerenjem. Rok Lulić Agent s licencom +385 91 220 6204 rok@spatium.hr Spatium nekretnine +385 51 272 903 info@spatium.hr ID KOD AGENCIJE: 6264 Rok Lulić Agent s licencom Mob: +385 91 220 6204 Tel: +385 51 272 903 E-mail: rok@spatium.hr www.spatium.hr
info@spatium.hr
Šetalište Andrije Kačića Miošića 5, 51000 Rijeka