

| Grad/Općina i naselje: | Rovinj - Rovinj |
|---|
| Podaci o objektu | Gradski vodovod |
|---|---|
| Stambena površina (u m²) | 750 |
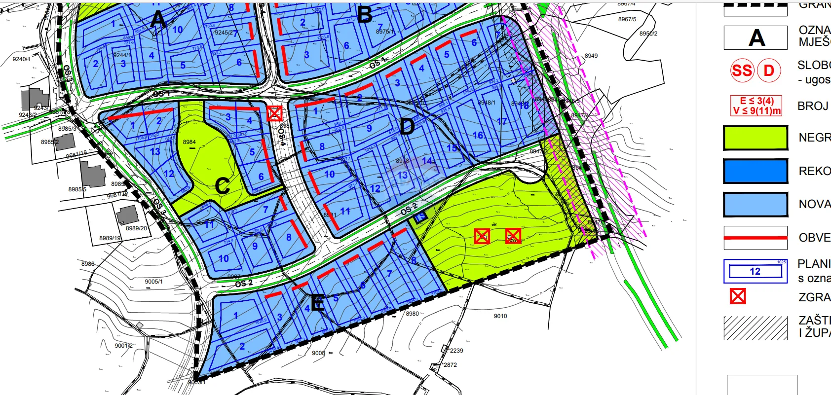
Rovinj,građevinska parcela M1,Lacosercio-750m2 Na odličnoj lokaciji u Rovinju u blizini trgovačkih centara sjevernog djela grada ,a iza restorana Tugurio, u zoni Lacosercio prodajemo građevinsku parcelu površine 750m2,pravilnih bridova. Namjena zemljišta je M1-pretežno stambena,što znači da se može graditi stambeni objekat sa najviše 4 stambenih jedinica, katnosti Po+P+1k+Pk,maksimalne izgradivosti 30%. S obzirom na blizinu grada i svih potrebnih sadržaja ova parcela predstavlja odlično ulaganje u turizam ili gradnju obiteljske kuće. Uredna i čista dokumentacija. Cijena je 269 000 eura ID KOD AGENCIJE: 300571003-909 Marko Rubbi Prodajni predstavnik Mob: +385 91 641 5035 Tel: +385 51 499 800 Fax: +385 51 499 801 Licenca: 169/2020 E-mail: m.rubbi@remax-istra.hr remax-centarnekretnina.com
info@remax-centarnekretnina.com
Krešimirova 12A, 51000 Rijeka