

| Grad/Općina i naselje: | Makarska - Makarska |
|---|
| Podaci o objektu | Lift, Gradski vodovod, Gradska kanalizacija |
|---|---|
| Balkon/Lođa/Terasa | Lođa |
| Komunalije | Gradski vodovod, Gradska kanalizacija |
| Godina zadnje renovacije | 2026 |
| Godina izgradnje | 2026 |
| Broj vlastitih parkirnih mjesta | 1 |
| Vrsta parkinga | Vanjsko natkriveno mjesto |
| Broj soba | 2 |
| Broj kupaonica | 1 |
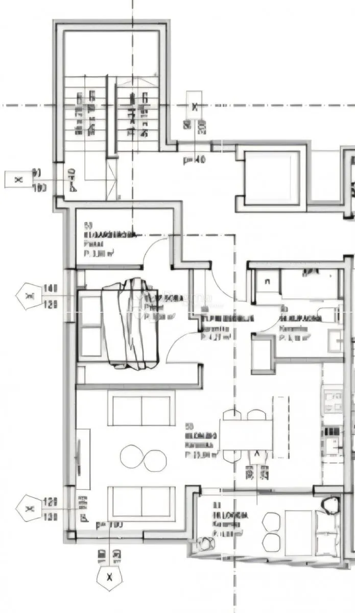
Na prodaju je jednosobni stan smješten na prvom katu moderne stambene zgrade u izgradnji, u mirnom dijelu Makarske. Zgrada ukupno broji šest stambenih jedinica i opremljena je dizalom, a završetak radova planiran je za proljeće 2026. godine. Stan se odlikuje funkcionalnim rasporedom i suvremenim rješenjima – sastoji se od ulaznog prostora, spavaće sobe s garderobom, kupaonice te prostranog dnevnog dijela koji objedinjuje kuhinju, blagovaonicu i dnevni boravak s izlazom na lođu. S lođe se pruža djelomičan pogled na more, što daje dodatnu vrijednost nekretnini. U gradnji i opremanju koriste se kvalitetni materijali i moderni sustavi – stan će imati video portafon, protuprovalna vrata, podno grijanje u kupaonici, klimatizaciju u svim prostorijama, vlastitu ostavu te pripadajuće natkriveno parkirno mjesto. Za dodatne informacije i dogovor oko razgledavanja, slobodno nas kontaktirajte. ID KOD AGENCIJE: ST4365 Danijela Stojčinović Asistent u posredovanju Mob: 098/920-6268 Tel: +385 21 293 201 E-mail: danijela.stojcinovic@dogma-nekretnine.com www.dogma-dalmacija.com
danijela@dogma-nekretnine.com
Fiorella la Guardia 6, 51000 Rijeka