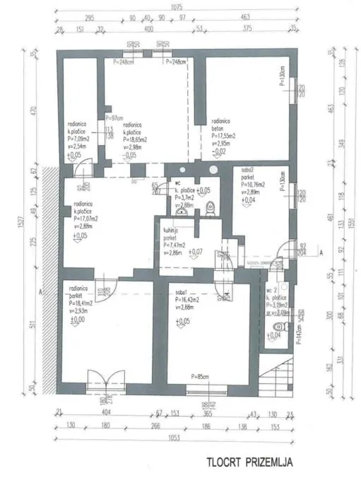
Na prodaju je samostojeća kuća površine 383 m2 smještena u atraktivnom dijelu Zagreba, Maksimiru. Ova prostrana nekretnina raspolaže s 3 zasebne jedinice, što omogućuje udoban i funkcionalan životni prostor za veću obitelj ili one koji traže dodatne sobe za rad ili goste.
Kuća se nalazi u samom centru naselja, što osigurava izuzetnu dostupnost svim važnim sadržajima. Osim toga objekt ima i okućnicu površine 310 m2, idealne za opuštanje i boravak na otvorenom. Pristup parkiralištu dodatno podiže razinu praktičnosti za buduće vlasnike.
Prizemlje i 1. Kat su u roh-bau fazi te su im potrebne dodatne adaptacije, s time da prizemlje i strujne i instalacije i vodu a 1. Kat ima vodu. 2. Kat i potkrovlje su uređeni!
Grijanje je riješeno plinskim centralnim sustavom, što jamči ugodnu temperaturu tijekom cijele godine. Smještaj u Maksimiru pruža izvanrednu povezanost s gradskim prometnicama, blizinu obrazovnih institucija, trgovina, zdravstvenih ustanova i zelenih površina, čineći ovu lokaciju iznimno poželjnom kako za obiteljski život, tako i za investitore.
Za dodatne informacije ili dogovor oko razgledavanja, stojimo Vam na raspolaganju. Iskoristite priliku i postanite vlasnik nekretnine na jednoj od najtraženijih zagrebačkih lokacija.
Za više informacija:
Andro Mrdeža
Tel: +385 91 7643999
Email: mrdeza.andro@gmail.com
ID NEKRETNINE: iro-1317