

| Grad/Općina i naselje: | Pula - Šijana |
|---|
| Balkon/Lođa/Terasa | Lođa |
|---|---|
| Godina izgradnje | 2025 |
| Klima uređaj | Da |
| Broj soba | 2 |
| Broj kupaonica | 2 |
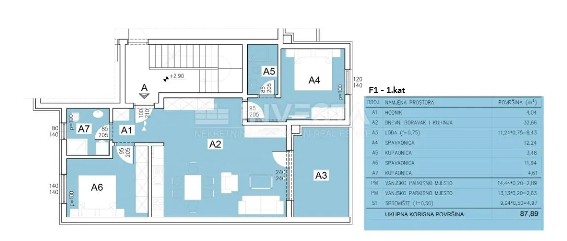
Na atraktivnoj i mirnoj lokaciji u pulskom naselju Šijana prodaje se stan u izgradnji, smješten u sklopu novog, suvremeno projektiranog stambenog kompleksa. Kompleks se sastoji od šest manjih zgrada s ukupno 24 stana, što osigurava ugodno, nenametljivo susjedstvo i visoku razinu privatnosti. Završetak gradnje planiran je za proljeće 2027. godine, a projekt se realizira uz svu potrebnu dokumentaciju i energetsku certifikaciju. Stan oznake F1 nalazi se na prvom katu zgrade te je pažljivo osmišljen kako bi pružio maksimalnu udobnost i funkcionalnost. Ukupna površina iznosi 87,89 m², dok stambeni dio zauzima 77,40 m². Sastoji se od ulaznog hodnika, prostranog dnevnog boravka s kuhinjom i blagovaonicom u open space konceptu, lođe, dvije spavaće sobe te dvije kupaonice, što osigurava dodatnu razinu komfora i privatnosti. U prizemlju zgrade nalazi se privatno spremište, a stanu pripadaju i dva vanjska parkirna mjesta u okolišu zgrade. Kvaliteta gradnje i opreme jedan je od glavnih aduta ovog projekta. Zgrade će imati termo-izolacijsku fasadu s visokoučinkovitom toplinskom izolacijom debljine 10 cm, dok su protuprovalna ulazna vrata i PVC vanjska stolarija s dvoslojnim IZO staklom i roletama standard u svim stanovima. Interijeri će biti opremljeni vrhunskom keramikom modernog dizajna, odabranom s naglaskom na dugotrajnost i estetiku, dok će na lođama biti postavljena protuklizna keramika. Ugodna temperatura tijekom cijele godine osigurana je klima-uređajem, uz dodatno električno podno grijanje u dnevnom boravku, kuhinji i kupaonicama. Kupaonice su dodatno opremljene električnim radijatorima – sušilima s termostatom, što doprinosi dodatnoj razini komfora. Lokacija u Šijani pruža savršen balans između mirnog stanovanja i blizine svih važnih sadržaja – škole, trgovina, javnog prijevoza i ostalih svakodnevnih potreba nalaze se na dohvat ruke. Kupnja je moguća putem stambenog kredita u suradnji s bankom s kojom investitor ima ugovorenu poslovnu suradnju, kao i kroz obročno plaćanje tijekom faza izgradnje. Prijenos vlasništva i posjeda ostvaruje se nakon ishođenja uporabne dozvole i etažiranja, a kupac je oslobođen plaćanja poreza na promet nekretnina od 3%. Ovaj stan predstavlja izvrsnu priliku za kupce koji traže kvalitetnu novogradnju, prostran i funkcionalan raspored te sigurnu dugoročnu investiciju u jednom od najpoželjnijih dijelova Pule. Stan oznake F3 – istog tlocrta i rasporeda, uz minimalnu razliku u kvadraturi – također je dostupan na drugom katu iste zgrade te se prodaje po istoj cijeni iskazanoj u ovom oglasu, pružajući kupcima mogućnost odabira etaže prema vlastitim preferencijama. Za sva dodatna pitanja i dogovor za razgledavanje, obratite nam se s povjerenjem ID KOD AGENCIJE: 2040 Anais Naimarević Ramljak Mob: +385 99 825 2485 Tel: +385 52 33 00 33 E-mail: anais@investa.hr www.investa.hr
nekretnine@investa.hr
43. istarske divizije 11, Fažana