

| Grad/Općina i naselje: | Rijeka - Škurinje |
|---|
| Podaci o objektu | Gradski vodovod, Gradska kanalizacija |
|---|---|
| Komunalije | Gradski vodovod, Gradska kanalizacija |
| Sustav grijanja | Sustav grijanja, klimatizacije i ventilacije |
| Klima uređaj | Da |
| Vrsta parkinga | Garaža |
| Stambena površina (u m²) | 1825 |
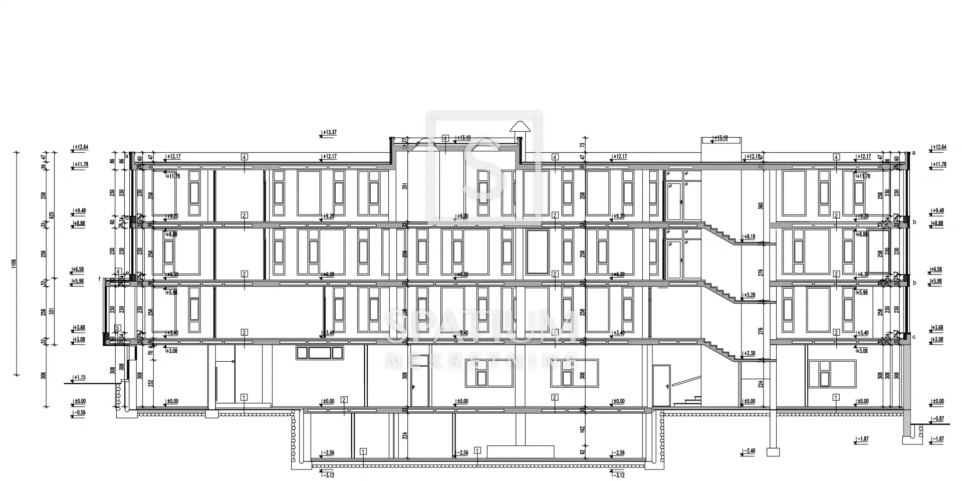
ŠKURINJE, u ponudu smo dobili poslovnu zgradu ukupne površine 1.825 m2, raspoređenu na prizemlje i tri kata. Prostor je prostran, pun dnevne svjetlosti i prilagodljiv različitim potrebama, uz mogućnost pregrađivanja u manje uredske jedinice. Grijanje je omogućeno putem dizalica topline, prostor je osmišljen za maksimalnu funkcionalnost i ugodno radno okruženje. Sve etaže povezane su liftom i stubištem, što omogućuje jednostavan pristup. Pored zgrade nalazi se parkiralište s više od 20 mjesta, dok je podzemna garaža dostupna uz mogućnost dodatnog zakupa. Lokacija je odlično prometno povezana, što je čini idealnom za tvrtke s većim brojem djelatnika ili za različite poslovne namjene. Nekretnina se može iznajmiti u cijelosti ili po katovima, a cijena je 25€ / m2. Trenutačno je u završnom stadiju uređenja te se mogu još uvijek odraditi određene izmjene, a predviđeni rok završetka radova je ožujak 2025. Uvjet je minimalno 5 godina zakupa ili više, ostalo sve po dogovoru sa zakupodavcima. Škurinje (tal. Scurigne) je riječki kvart koji obuhvaća stara naselja Škurinje i Tibljaši te naselje Novo Škurinje koje je izgrađeno 1970-ih. Površine je 213,50 ha i broji 5.751 stanovnika. Za grad Rijeku reklo bi se „mladi“ kvart. Izuzetno dobra mikrolokacija zbog blizine kako centra grada, tako i spajanja na brzu cestu. Za sve ostale informacije obratite se s povjerenjem. Spatium nekretnine + 385 51 272 903 info@spatium.hr Sanjin Latinčić agent s licencom +385 91 28 99 599 sanjin@spatium.hr Spatium nekretnine +385 51 272 903 info@spatium.hr ID KOD AGENCIJE: 4614 Sanjin Latinčić Agent s licencom Mob: +385 91 289 9599 Tel: +385 51 272 903 E-mail: sanjin@spatium.hr www.spatium.hr
info@spatium.hr
Šetalište Andrije Kačića Miošića 5, 51000 Rijeka