

| Lokacija (županija) i grad/općina: | Grad Zagreb - Donji Grad |
|---|
| Podaci o objektu | Gradski vodovod |
|---|---|
| Komunalije | Gradski vodovod |
| Plin | Da |
| Godina izgradnje | 1910 |
| Broj soba | 4 |
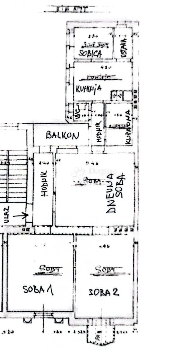
Prodaje se prostrani građanski stan u samom centru Zagreba, idealan za sve koji traže udobnost i prestiž. Smješten na trećem katu potpuno obnovljene zgrade, ovaj stan površine 116 m² pruža izvanredan raspored i obilje prirodne svjetlosti. Stan se sastoji od ulaznog hodnika, tri prostrane sobe, kuhinje, špajze, djevojačke sobe, kupaonice, odvojenog toaleta i balkona s pogledom na mirno dvorište i zelenilo. Visoki stropovi od 3,30 metara dodatno doprinose osjećaju prostranosti i elegancije. Grijanje je plinsko etažno centralno, a novi kondenzacijski bojler osigurava ekonomičnost i udobnost. Prema dvorištu je ugrađena nova PVC stolarija koja dodatno osigurava toplinsku i zvučnu izolaciju. Lokacija stana je izvanredna, u neposrednoj blizini Zrinjevca, Glavnog kolodvora, Hotela Esplanade te svih bitnih sadržaja i tramvajskih linija. Zgrada ima zelenu naljepnicu nakon potresa, što potvrđuje njenu sigurnost i stabilnost. Uz to, zgrada je opremljena novim video nadzorom i video portafonom, što dodatno povećava sigurnost i udobnost stanara. Stanu pripada i šupa na tavanu površine 21 m² te podrum površine 9 m², pružajući dodatni prostor za pohranu. Stan je potrebno urediti, što vam daje priliku da ga prilagodite svojim željama i potrebama. Ovaj stan predstavlja idealnu priliku za investiciju ili za stvaranje doma u jednom od najprestižnijih dijelova Zagreba. Ne propustite priliku, kontaktirajte nas za više informacija i razgledavanje. Vaš agent LIDIJA MATIJEVIĆ Mob: 095/3721999 E-mail: lidija.matijevic@dogma-nekretnine.com ID KOD AGENCIJE: ZG71490 Lidija Matijević Asistent u posredovanju Mob: 095/372-1999 Tel: 01/647-3011 E-mail: lidija.matijevic@dogma-nekretnine.com www.dogma-zagreb.com
danijela@dogma-nekretnine.com
Fiorella la Guardia 6, 51000 Rijeka