

| Grad/Općina i naselje: | Zadar - Mocire |
|---|
| Podaci o objektu | Novogradnja, Gradski vodovod |
|---|---|
| Ostali objekti i površine | Dvorište / vrt, Podrum |
| Broj soba | 2 |
| Broj kupaonica | 1 |
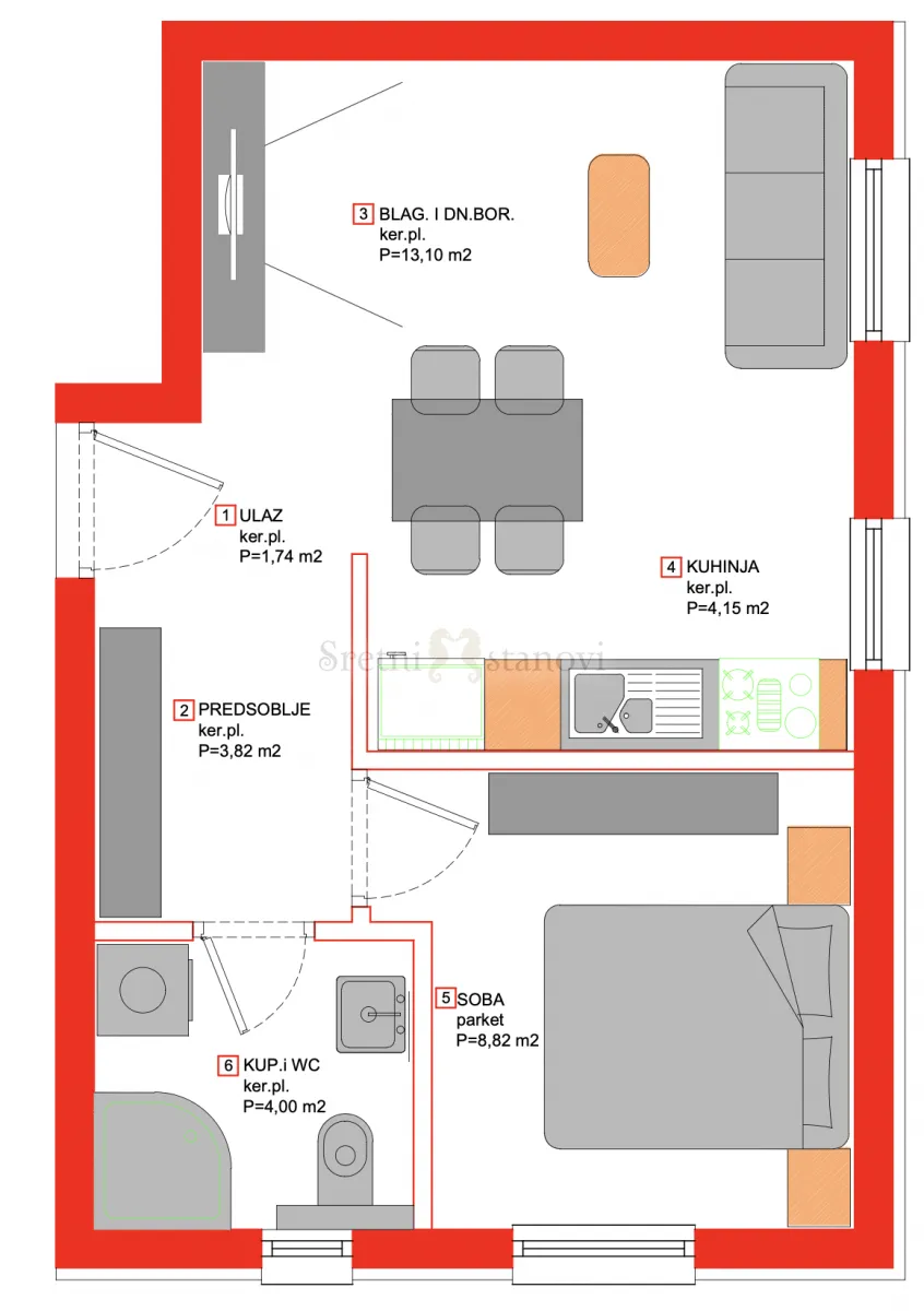
Prodaje se stan u prizemlju lijepe novogradnje u Zadru, Mocire (Borik), zajedno sa spremištem i parkirnim mjestom. Ova moderna novogradnja Borik nalazi se na samo 10 minuta hoda do mora, a u blizini je svih sadržaja potrebnih za ugodan život, kao što su trgovine, ugostiteljski objekti, škole, vrtić, sportski i fitness centri,... Stan se nalazi u prizemlju zgrade, a sastoji se od ulaznog hodnika, dnevnog boravka s kuhinjom i blagovaonom, spavaće sobe i kupaone. Moguća je kupnja vrta u okućnici zgrade. U cijenu su uključeni i veliko spremište (13,78m2) i vanjsko parkirno mjesto. Stanovi i zgrada se opremaju vrhunskom opremom: video nadzor okućnice, kameno stubište, električno podno grijanje svih prostorija u stanu, klima uređaj u svim sobama, 3-slojna stakla, elektro podizači roleta, komarnici, video portafon,... Kupac može birati keramiku i/ili parkete. Uredno vlasništvo i papiri gradnje. ______ EN This apartment for sale is located on the ground floor of a beautiful new building in Zadar, Mocire (Borik). This modern new building Borik is located just a 10-minute walk from the sea, and is close to all amenities necessary for a comfortable life, such as shops, restaurants, schools, kindergartens, sports and fitness centers,... The apartment is located on the ground floor of the building, and consists of an entrance hall, living room with kitchen and dining area, bedroom and bathroom. It is possible to purchase a garden in the building's courtyard. A large storage room (13,78m2) and an outdoor parking space are include in the price. The apartments and the building are equipped with top-quality equipment: video surveillance of the outside of the building, stone staircase, electric underfloor heating in all rooms in the apartment, air conditioning in living room and bedroom, 3-layer window glass, electric roller shutters, mosquito nets, video intercom,... The buyer can choose ceramics and/or parquet floors. Proper ownership and construction papers. ID KOD AGENCIJE: 7690 Andrea Zeneral Mob: 099 673 1949 Tel: 051/301-502 E-mail: andrea@sretnistanovi.hr www.sretnistanovi.hr
andrea@sretnistanovi.hr
Pul Vele crikve 1, 51000 Rijeka