

| Grad/Općina i naselje: | Sesvete - Sesvetska Sela |
|---|
| Podaci o objektu | Lift, Gradski vodovod, Gradska kanalizacija |
|---|---|
| Komunalije | Gradski vodovod, Gradska kanalizacija |
| Plin | Da |
| Balkon/Lođa/Terasa | Lođa |
| Godina izgradnje | 2026 |
| Broj vlastitih parkirnih mjesta | 1 |
| Vrsta parkinga | Garaža |
| Broj soba | 3 |
| Broj kupaonica | 1 |
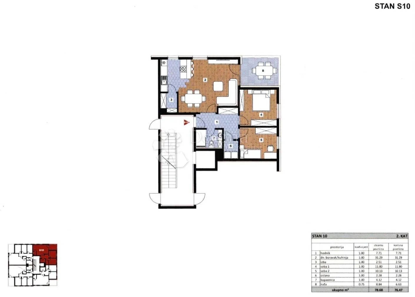
prodajemo 3-sobni stan u novogradnji na Sesvetskim selima , na drugom katu površine 76,47 m2 sa dvije spavaće sobe , veliki dnevni boravak sa kuhinjom 31 m2,orijentacije sjever - istok obilje prirodnog svjetla , kvalitetni ugradbeni materijali,funkcionalni tlocrt, plinsko etažno grijanje , lift, PVC stolarija , moguća je kupiti garažno parkirno mjesto površine 13,5 m2 po cijeni od 21.600 Eura rok useljenja kraj 2026 godine ili prvi kvartal 2027 godine odlična prometna povezanost,svi sadržaji u blizini , škola, vrtić , trgovine , pošta, banke nazovite za više detalja na 098 235 780 Aleksandar Tojagić agent sa licencom ID KOD AGENCIJE: ZG886910 Aleksandar Tojagić Agent s licencom Mob: 098/235-780 Tel: +38598235780 E-mail: aleksandar.tojagic@dogma-nekretnine.com www.dogma-zagreb.com
danijela@dogma-nekretnine.com
Fiorella la Guardia 6, 51000 Rijeka