

| Grad/Općina i naselje: | Pula - Monvidal |
|---|
| Podaci o objektu | Lift, Gradski vodovod, Gradska kanalizacija |
|---|---|
| Komunalije | Gradski vodovod, Gradska kanalizacija |
| Balkon/Lođa/Terasa | Lođa |
| Godina izgradnje | 2026 |
| Broj vlastitih parkirnih mjesta | 2 |
| Broj soba | 2 |
| Broj kupaonica | 1 |
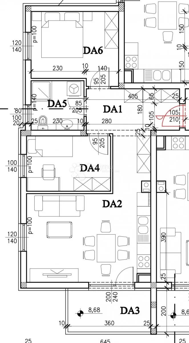
Na prodaju je moderan stan u visokokvalitetnoj novogradnji, ukupne stambene bruto površine 64 m², odnosno neto 61 m² stambeno, smješten na trećem katu zgrade s liftom. Idealan dvosoban stan u kojem se osjećate komforno. Stanu pripadaju i 2 vanjska parkirna mjesta. Sveukupno neto 67m2 Zgrada je građena prema visokim standardima, s posebnim naglaskom na *vrhunsku toplinsku i zvučnu izolaciju (kamena vuna)*, kvalitetne materijale i dugotrajnost. Sve je izvedeno pažljivo i profesionalno – kako treba biti. Stan se *prodaje po principu “ključ u ruke”, a **predviđeno useljenje je u srpnju 2026. godine*. Kupcu je omogućeno da sam bira keramiku, sanitarije i laminat, unutar unaprijed definiranog budžeta. U slučaju odabira materijala iznad tog budžeta, razlika se jednostavno nadoplaćuje – idealna prilika da stan prilagodite vlastitom ukusu. Lokacija je izuzetno praktična – u neposrednoj blizini nalaze se trgovine, frizerski saloni, mesnica, liječnici, ljekarne i svi sadržaji potrebni za ugodan i funkcionalan život. Osnovna škola Kaštanjer udaljena je svega 700 metara, dok je plaža dostupna automobilom za otprilike 5–7 minuta. Ova nekretnina predstavlja odličan izbor kako za mirno stanovanje, tako i za sigurnu investiciju, zahvaljujući kvaliteti gradnje, odličnoj lokaciji i fleksibilnim mogućnostima uređenja. Za dodatne informacije i razgledavanje stojim vam na raspolaganju. Filip Crnjac Licencirani agent +385 91 600 1216 ID KOD AGENCIJE: IS1520034 Filip Crnjac Agent s licencom Mob: 091/600-1216 Tel: 052 645 444 E-mail: filip.crnjac@dogma-nekretnine.com www.dogma-istra.com
danijela@dogma-nekretnine.com
Fiorella la Guardia 6, 51000 Rijeka