

| Grad/Općina i naselje: | Gornja Dubrava - Gornja Dubrava |
|---|
| Broj soba | 2-sobni |
|---|---|
| Podaci o objektu | Novogradnja, Gradski vodovod, Gradska kanalizacija |
| Energetski razred | A+ |
| Kat | Visoko prizemlje |
| Ostali objekti i površine | Dvorište / vrt |
| Orijentacija stana | Sjever, Zapad |
| Funkcionalnosti i karakteristike | Podno grijanje |
| Broj vlastitih parkirnih mjesta | 1 |
PRODJE SE STAN – DUBRAVA, ZAGREB
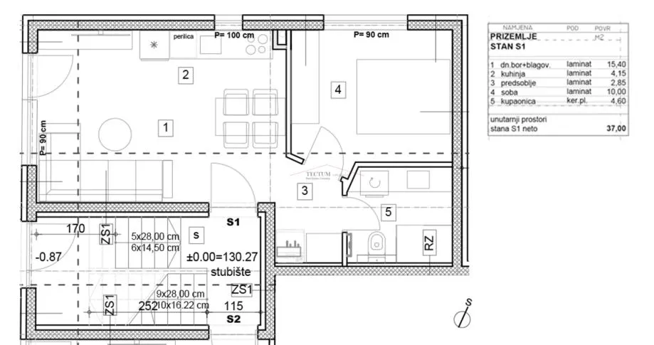
Na prodaju stan površine 37m2 u projektu od 5 stambenih jedinica, smješten u mirnoj ulici u centru Dubrave, svega nekoliko koraka od Avenije Dubrava. Uz stan ide vrt i vanjsko parkirno mjesto što čini ukupnu obračunsku površinu id 41m2
Stan se nalazi u prizemlju zgrade i sastoji se od:
- ulaznog predsoblja
- dnevnog boravka s blagovaonicom
- kuhinje
- spavaće sobe
- kupaonice
- vrta
Zgrada je moderno opremljena:
- Termoizolacija 15 cm (ETICS sustav)
- Dizalice topline
- Podno grijanje
- Troslojna PVC stolarija
- Protuprovalna vrata
- Klima uređaj
Planirani završetak gradnje 04/2026.
Stan je idealan za mlade parove, pojedince ili kao investicija za najam zahvaljujući odličnoj lokaciji i visokom standardu opreme.
Za više informacija i dogovor oko razgledavanja, slobodno se javite!
Ostale informacije na upit.
mob: 095-88-22-552
mail: prodaja@tectum-nekretnine.hr
www.tectum-nekretnine.hr
info@tectum-nekretnine.hr
Kajfešov brijeg 12, 10000 Zagreb