

| Lokacija (županija) i grad/općina: | Grad Zagreb - Donja Dubrava |
|---|
| Podaci o objektu | Novogradnja, Gradski vodovod, Gradska kanalizacija |
|---|---|
| Balkon/Lođa/Terasa | Terasa |
| Komunalije | Gradski vodovod, Gradska kanalizacija |
| Godina izgradnje | 2026 |
| Ostali objekti i površine | Dvorište / vrt |
| Sustav grijanja | Sustav grijanja, klimatizacije i ventilacije |
| Broj soba | 2 |
| Broj kupaonica | 1 |
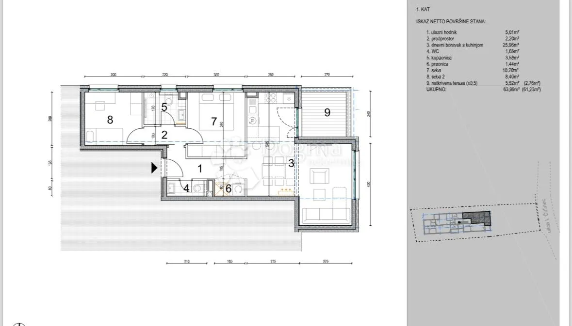
Predstavljamo ekskluzivni stambeni projekt u početnoj fazi izgradnje, čiji je završetak predviđen za zimu 2026. godine. Stanovi su projektirani kako bi spojili modernu tehnologiju, vrhunsku gradnju i maksimalnu funkcionalnost, čineći ih idealnim izborom za obitelj ili sigurnu dugoročnu investiciju. ISKAZ NETO POVRŠINE STANA: 1. ulazni hodnik 5,01m2 2. predprostor 2.20m2 3. dnevni boravak s kuhinjom 25,96m2 4. WC 1,68m2 5. kupaonica 3,58 m2 6. praonica 1,44m2 7. soba 10,20m2 8. soba 2 8,40m2 9. natkrivena terasa (x0,5) 5,52m2 UKUPNO: 63,99 M2 (61,23m2) Svaki stan opremljen je podnim grijanjem putem dizalice topline Vaillant s termostatima u svakoj prostoriji, klimatizacijom i kupaonicama opremljenim sanitarnim elementima brenda Armal, uz dodatne radijatore za optimalnu toplinu. Podne obloge čine parketi prilagođeni podnom grijanju i keramičke pločice visoke kvalitete. Ugrađena je PVC stolarija antracit boje s troslojnim IZO staklima i komarnicima, velike staklene stijene koje propuštaju obilje prirodne svjetlosti, drvena unutarnja stolarija, pregradni zidovi izvedeni u knauf sustavu, protuprovalna vrata marke Kolnoa i elegantne Vimar Neve utičnice. Projekt je zamišljen s naglaskom na energetsku učinkovitost, predviđen je energetski razred A, što osigurava smanjene troškove grijanja i hlađenja, ali i ugodnu unutarnju klimu tijekom cijele godine. Vanjski prostor obuhvaća kvalitetnu toplinsku izolaciju fasade (15 cm stiropora i mineralna vuna), kaskadne Betafence ograde, videoportafone i videonadzor marke Hikvision, uređeno parkiralište s rasvjetom, rampu na ulazu u posjed te pripremu za punjenje električnih vozila. Stanovi se nalaze u neposrednoj blizini svih sadržaja potrebnih za udoban svakodnevni život, uključujući vrtiće, osnovne škole, trgovine, zdravstvene ustanove i javni prijevoz, uključujući autobus i vlak. Ovo je rijetka prilika koja spaja modernu gradnju, luksuz, energetsku učinkovitost i funkcionalnost, pružajući idealan dom za obitelj, ali i pouzdanu dugoročnu investiciju. Ne propustite priliku i saznajte više informacija već danas. Parking nije uključen u cijenu. Za razgled nazvati: Sanja Ljubas 099 856 0887 ID KOD AGENCIJE: ZG87332 Sanja Ljubas Asistent u posredovanju Mob: 099/856-0887 Tel: 01/211-0039 E-mail: sanja.ljubas@dogma-nekretnine.com www.dogma-zagreb.com
danijela@dogma-nekretnine.com
Fiorella la Guardia 6, 51000 Rijeka