Učitavanje


| Grad/Općina i naselje: | Podsljeme - Bačun |
|---|
| Komunalije | Asfaltni put, Struja |
|---|
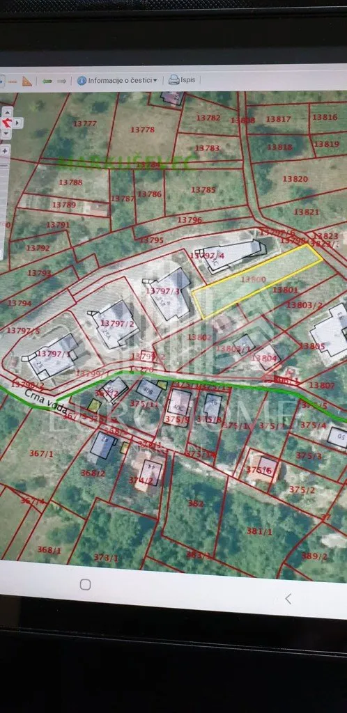
Prodaje se građevinsko zemljište 1.081m2, Bačun, sjeverni dio grada. Sastoji se od 3 čestice , moguća prodaja jedne polovine zemljišta. Uz zemljište prolazi novoasfalirana cesta , a omunalije se nalaze na samom terenu. Blizina javnog prijevoza. Vlasništvo je uredno bez zabilježbi i tereta. Za sve dodatne informacije, molim kontaktirajte me na: Danko Mob: 091 7234 625 E-mail: danko@eurohome-nekretnine.hr Web: www.eurohome-nekretnine.hr Agencijska naknada za kupca iznosi 2% ID KOD AGENCIJE: 1014 Danko Rogić Savjetnik u prodaji Mob: 091 7234 625 Tel: 01 6231 365 E-mail: danko@eurohome-nekretnine.hr www.eurohome-nekretnine.hr
lovre@eurohome-nekretnine.hr
Vlaška ulica 64, 10000 Zagreb