

| Grad/Općina i naselje: | Krapinske Toplice - Krapinske Toplice |
|---|
| Godina izgradnje | 2027 |
|---|---|
| Energetski razred | A+ |
| Sustav grijanja | Etažno plinsko centralno, Sustav grijanja, klimatizacije i ventilacije |
| Broj soba | 3-sobni |
| Kat | 1. |
| Ukupni broj katova u zgradi | 4 |
| Orijentacija stana | Sjever, Istok |
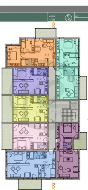
Prodaje se 3-sobni stan S1.7, na 1. katu, novogradnja, u Krapinskim Toplicama. Stan ima 66,77 m2 obračunske površine, korisne površine 70,40 m2. Sastoji se od hodnika, dnevnog boravka + blagovaonice, kuhinje, kupaonice, predsoblja, 2 spavaće sobe i balkona. Uz stan, obavezan odabir i kupnja garažnog parkirnog mjesta ili vanjskog parkirnog mjesta. U planu je izgradnja 5 modernih stambenih zgrada. Prva zgrada ima ukupno 26 stambenih jedinica različitih kvadratura i rasporeda. Svaka zgrada bit će građena prema suvremenim građevinskim standardima, s naglaskom na visokokvalitetne materijale, funkcionalan raspored prostora i energetsku učinkovitost. Planirana su četiri garažna parkirna mjesta, sedam natkrivenih parkirnih mjesta ispod zgrade te 22 vanjska parkirna mjesta oko objekta. Zgrada će imati etažnost P+4K, a krovište će biti ravno, s minimalnim nagibom za odvodnju oborinskih voda. Završni sloj krova činit će obluci. Projekt se nalazi u mirnom i zelenilom okruženom dijelu naselja, a istovremeno nudi blizinu svih važnih sadržaja – savršena ravnoteža između privatnosti, prirode i svakodnevne praktičnosti. U neposrednoj blizini nalazi se: Specijalna bolnica za medicinsku rehabilitaciju, Aquae Vivae – moderan vodeni park i wellness centar, trgovine, škole, vrtići i ambulante, kafići, restorani i šetnice. Očekivani završetak izgradnje te ishođenje uporabne dozvole i etažnog elaborata je početak 2027. g. Novi projekt osmišljen je upravo s filozofijom: korištenja kvalitetnih materijala, optimizacija potrošnje energije, energetski razredi višeg ranga te pažljivo planirani zeleni prostori. Ovakav pristup ne samo da doprinosi očuvanju okoliša, već i dugoročno smanjuje troškove života stanarima. Nosiva konstrukcija sastojat će se od armirano-betonskih zidova u uzdužnom i poprečnom smjeru, temelji se na temeljnoj ploči, zidovima i međukatnim/krovnim pločama. Vertikalna komunikacija uključuje dvokrako stubište i dizalo kapaciteta 8 osoba (630 kg). Fasada će biti izvedena u sustavu ETICS, uz ugradnju EPS ili MW ploča, obloženih armiranom mrežicom i silikatnom završnom žbukom. Ukupna debljina fasadnog sloja iznosi 35 cm. Unutarnje pregrade planiraju se izvesti u suhomontažnom sustavu tipa Knauf, debljine 13,5–15,5 cm, obostrano gletane, u skladu sa zahtjevima prostorije u kojoj se nalaze. Vanjska stolarija bit će izrađena od PVC profila s troslojnim IZO staklom i visokom toplinskom izolacijom, rolete sa skrivenim kutijama i ugrađenim elektromotorima. Većina otvora bit će izvedena kao francuski prozori, s staklenim ogradama ili fiksnim staklenim parapetima, dok će balkoni imati staklene ograde i dijelom zidane elemente. Završna obrada podova ovisit će o namjeni prostora. Svi podovi bit će izvedeni kao plivajući, s podlogom od EPS-T ploča, cementnim estrihom i završnom oblogom. Podno grijanje će biti razvedeno kroz cijeli sustav. Kao podna obloga u sanitarnim prostorijama i vanjskim površinama koristit će se keramika, dok je u dnevnim boravcima, kuhinjama, blagovaonicama, hodnicima, garderobama i spavaćim sobama predviđena ugradnja parketa. Primarni sustav grijanja predviđen je putem dizalica topline zrak–zrak, dok je sekundarni izvor plinski kondenzacijski kombi bojler povezan na sustav podnog grijanja. Priprema potrošne tople vode također će biti putem plinskog kondenzacijskog bojlera. *KUPAC NE PLAĆA POREZ NA PROMET NEKRETNINE *KUPAC NE PLAĆA AGENCIJSKU PROVIZIJU *ASISTENCIJA OKO SVE POTREBNE DOKUMENTACIJE ID NEKRETNINE: 1074 Više informacija na +385 91 518 4526 Vesna info@k2nekretnine.com <br>K2 NEKRETNINE<br>QBAT STUDIO d.o.o.
info@k2nekretnine.com
Ravenečki vinogradi 4, 10040 Zagreb