

| Grad/Općina i naselje: | Donja Dubrava - Donja Dubrava |
|---|
| Godina izgradnje | 2026 |
|---|---|
| Broj vlastitih parkirnih mjesta | 1 |
| Sustav grijanja | Etažno plinsko centralno |
| Broj kupaonica | 1 |
| Broj soba | 4-sobni |
| Kat | Potkrovlje |
| Podaci o objektu | Novogradnja, Gradski vodovod, Gradska kanalizacija, Struja |
| Balkon/Lođa/Terasa | Balkon |
| Ostali objekti i površine | Bazen |
| Dozvole i potvrde | Građevinska dozvola |
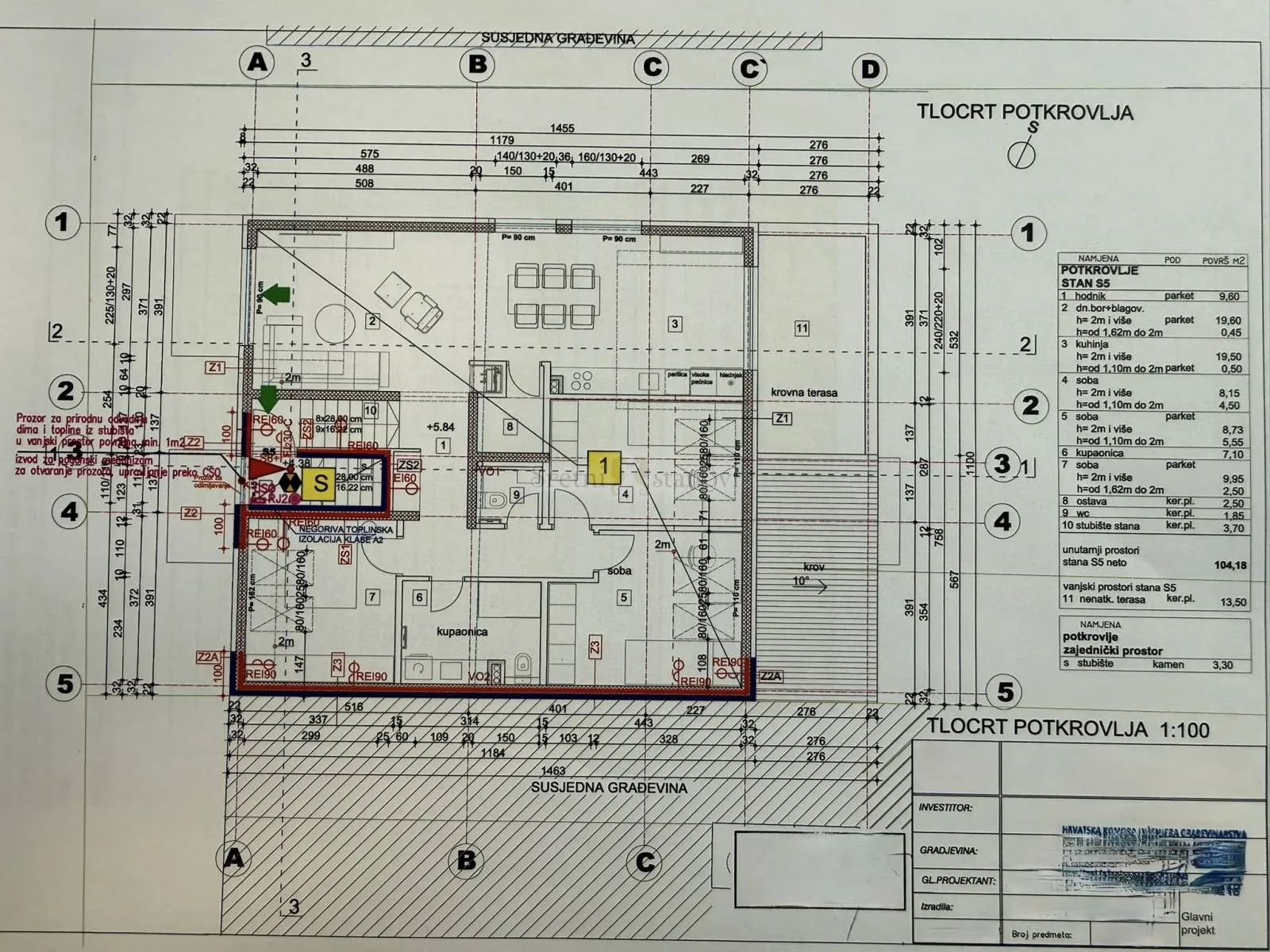
Prodaje se atraktivan penthouse u zagrebačkoj Dubravi, ukupne korisne površine 110 m², smješten u manjoj stambenoj zgradi na odličnoj i prometno povezanoj lokaciji. Stan dolazi sa spremištem te vanjskim parkirnim mjestom, što dodatno povećava njegovu funkcionalnost i vrijednost. Nekretnina se nalazi u neposrednoj blizini okretišta Dubrava / Maksimir, kao i svih ključnih sadržaja potrebnih za ugodan i praktičan život – javni prijevoz, trgovine, škole, vrtići, zdravstvene ustanove i slično. Stan će biti opremljen modernim sustavom dizalice topline te podnim grijanjem, što osigurava visoku energetsku učinkovitost i maksimalnu udobnost stanovanja. Planirani završetak gradnje: svibanj 2026. godine. Ova nekretnina idealan je izbor za one koji traže kvalitetan, suvremen i komforan dom na odličnoj gradskoj lokaciji, kao i za investiciju. Za više informacija i razgledavanje – slobodno se obratite. AGENCIJSKA NAKNADA: 2,5% + PDV Marko Nenadić Mob: 091 311 7269 E-mail: marko@sretnistanovi.hr www.sretnistanovi.hr ID KOD AGENCIJE: 7689 Sretni stanovi d.o.o. Mob: +385 91 311 7269 Tel: 051/301-502 E-mail: info@sretnistanovi.hr www.sretnistanovi.hr
andrea@sretnistanovi.hr
Pul Vele crikve 1, 51000 Rijeka