

| Grad/Općina i naselje: | Novi Zagreb - Zapad - Lučko |
|---|
| Sobnost | 3-3.5 sobni |
|---|---|
| Garaža | Da |
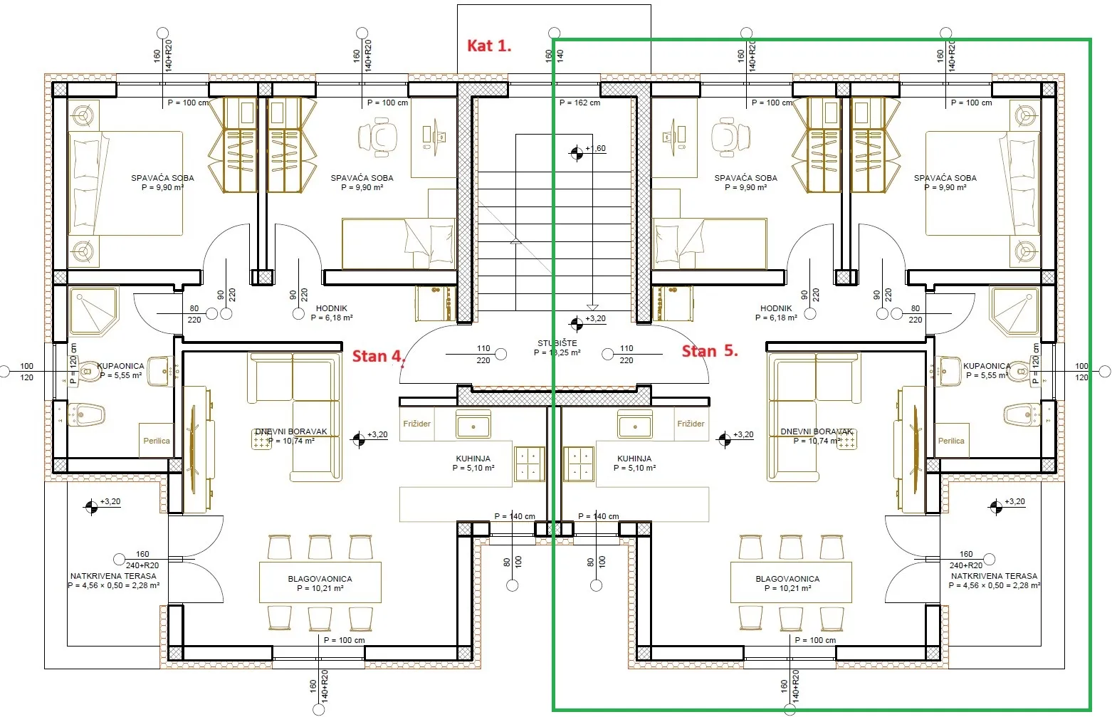
STAN LUČKO, S5 – Novogradnja 69,52 m² (A+) – Direktno od investitora (BEZ PROVIZIJE)
OPIS:
Prodaje se trosoban stan oznake S5 na 1. katu moderne novogradnje u Ježdovečkoj ulici, Lučko. Stan je projektiran prema nZEB standardu (energetski razred A+), što jamči minimalne troškove režija.
TOČNA SPECIFIKACIJA POVRŠINA (prema projektnoj dokumentaciji):
Ukupna prodajna (obračunska) površina iznosi 69,52 m², a sastoji se od:
Stambeni prostor (57,58 m²):
Vanjski prostori i dodaci (obračunati po koeficijentima):
• Terasa (natkrivena): 4,52 m²
• GPM (garaža): 16,72 m²
• Spremište: 2,63 m²
Ukupna korisna površina u naravi s GPM: 81,45 m².
TEHNIČKI DETALJI:
• Grijanje: Podno grijanje putem dizalica topline i PTV.
• Hlađenje: Inverterski klima uređaj.
• Izolacija: ETICS fasada 15 cm, PVC stolarija s troslojnim staklima.
• Sigurnost: Protuprovalna i protupožarna vrata, video portafon.
• Internet: Priprema za optiku.
• Priključci: gradski vodovod i odvodnja, elkektrični priključak
LOKACIJA:
Ježdovečka ulica, Lučko – mirno okruženje idealno za obitelji, izvrsna povezanost s gradom i blizina svih sadržaja (škola, vrtić, trgovine). Zahvaljujući brzom izlazu na glavne prometnice, idealno je pozicioniran i za one koji svakodnevno gravitiraju prema susjednim naseljima kao što su Stupnik, Ježdovec ili Hrvatski Leskovac:
Čvor Lučko (A1/Obilaznica): cca 3-4 min (brz izlaz prema svim dijelovima Zagreba)
Arena Centar / Lanište: cca 7-8 min
Stupnik (Gornji/Donji): cca 5 min
Hrvatski Leskovac: cca 6 min
Javni prijevoz (ZET): Stanica je u neposrednoj blizini, što osigurava laku povezanost s ostatkom grada.
PRODAJA:
• Direktno od investitora (Topčagić-Usluge d.o.o.).
• Bez agencijske provizije.
• Cijena: 3100 Eur/m2
KONTAKT:
📞 Prikaži telefon - Elvir
📧 elvirtop@hotmail.com
https://maps.app.goo.gl/qvetzMVXES9Dm4Ni7?g_st=ac