

| Grad/Općina i naselje: | Dugo Selo - Dugo Selo - Zapad |
|---|
| Godina izgradnje | 2017 |
|---|---|
| Energetski razred | U izradi |
| Sustav grijanja | Etažno plinsko centralno |
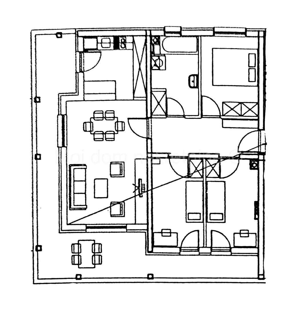
| Broj soba | 4-sobni |
| Kat | 3. |
| Orijentacija stana | Jug, Istok |
BEZ PROVIZIJE ZA KUPCE! Uvijek najpovoljniji ! Prodaje se prostran 4 soban stan s terasom na 3. katu zgrade od ukupno 3 kata. Stan je izrazito svijetao zbog svoje trostrane orijentacije. Opremljen je PVC stolarijom, protuprovalnim vratima i klima uređajem. Nalazi se u blizini Retail parka, trgovina, škole, vrtića te drugih sadržaja potrebnih za ugodan i kvalitetan život. Stanu pripada vanjsko parkirno mjesto (11.5m²). Sastoji se od: - dnevnog boravka s kuhinjom i blagovaonom - 3 spavaće sobe - kupaone s wc-om - natkrivene terase - hodnika Grijanje u stanu: plinsko-etažno Godina izgradnje: 2012.g. Energetski certifikat: u izradi Orijentacija: ISTOK - JUG - ZAPAD Lift: NE Vlasništvo uredno Posrednik: Mislav Plavanjac, Moj dom nekretnine d.o.o. *USLUGE KREDITIRANJA*<br>U suradnji s licenciranim kreditnim posrednicima olakšavamo Vam put do stambenog kredita pronalaskom najpovoljnijeg modela kredita za Vas. Kontaktirajte nas i prepustite se planiranju useljenja u svoj dom iz snova! *USLUGA ENERGETSKOG CERTIFICIRANJA*<br>U suradnji s licenciranim energetskim certifikatorima nudimo Vam mogućnost usluge energetskog certificiranja Vaše nekretnine. Obratite nam se! Za sve dodatne informacije možete nas kontaktirati na broj mob.: 099/637-2727 ili na kontakte navedene u oglasu. Obratite se s povjerenjem! Cjelokupna ponuda nekretnina na www.mojdom-nekretnine.hr
info@mojdom-nekretnine.hr
Srebrnjak 19, 10000 Zagreb