

| Grad/Općina i naselje: | Maksimir - Gornji Bukovac |
|---|
| Sustav grijanja | Etažno plinsko centralno |
|---|
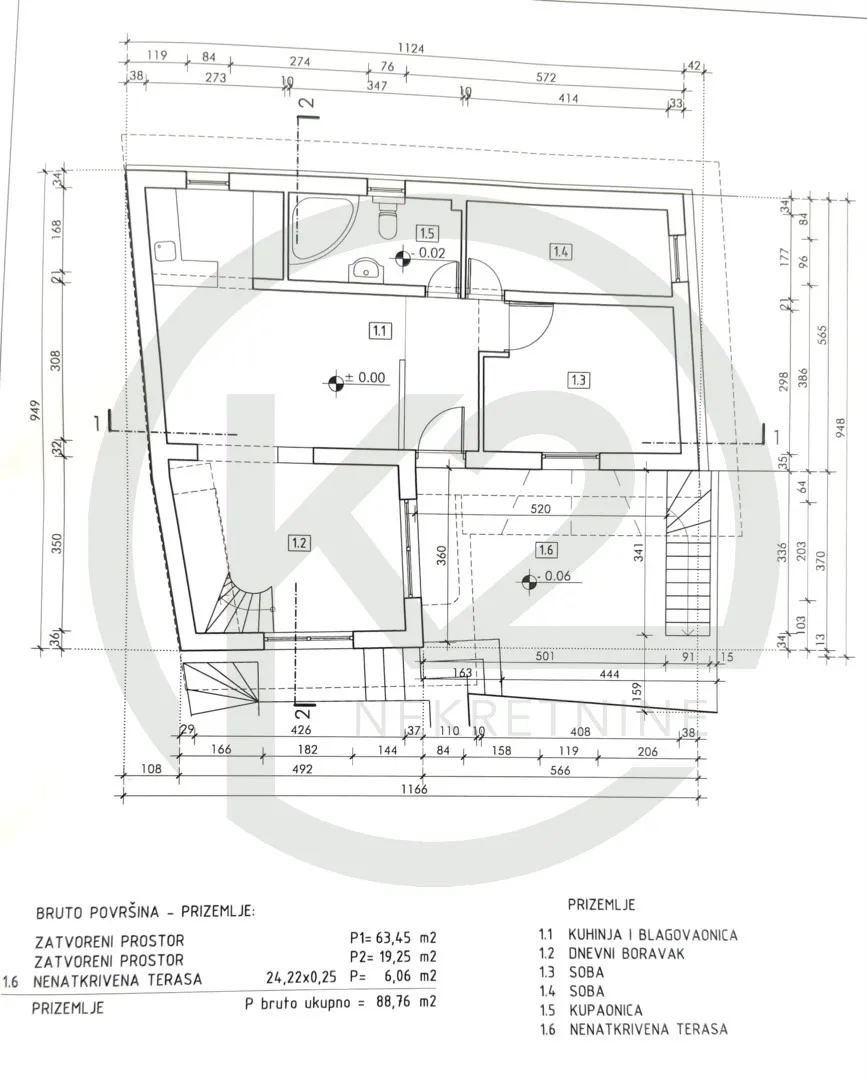
Na jednoj od najtraženijih lokacija u Zagrebu, na Bukovcu, prodaje se nekretnina s izuzetnim potencijalom – dvije kuće smještene na jednoj parceli. Ukupna površina objekata iznosi 515 m², uz dodatnu garažu od 50 m², što ovu nekretninu čini izuzetno zanimljivom kako za privatne kupce, tako i za investitore. Sve zajedno je smješteno na parceli ukupne površine 620 m2. Lokacija nudi ono što je danas najtraženije – mir, zelenilo i privatnost, a istovremeno se nalazi svega nekoliko minuta vožnje od centra grada, Maksimira, škola, vrtića i svih važnih sadržaja. Nekretnina pruža brojne mogućnosti: • obiteljsko stanovanje za više generacija<br>• luksuznu rezidenciju s dodatnim objektom<br>• investiciju za dugoročni ili kratkoročni najam<br>• adaptaciju u više stambenih jedinica<br>• boutique projekt na odličnoj lokaciji Ovakve nekretnine na Bukovcu pojavljuju se iznimno rijetko, što ovu ponudu čini posebnom prilikom za kupce koji traže dugoročnu vrijednost, prostor i vrhunsku lokaciju. Prva kuća je građena 1969. godine te se sastoji od suterena gdje se nalazi zaseban stan, visokog prizemlja gdje se nalazi druga stambena jedinica koja je razvijena u dvije etaže, donja etaža gdje se nalazi kuhinja sa blagovaonicom, dnevni boravak, sanitarni čvor, velika soba sa izlazom na natkrivenu terasu. u produžetku kuće se nalaze zidana spremišta koja su površine po cca 10 m2, dok je sama kuća ukupne površine 269,59 m2. U dvorištu kuće se nalazi garaža površine 50 m2 Dok se u stražnjem dvorištu nalazi drugi objekat građen 2000. godine te je razvijen u tri etaže, podrum površine 53 m2, prizemlje koje se sastoji od ulaznog hodnika, prostranog dnevnog boravka sa kuhinjom i blagovaonicom, dvije spavaće sobe i kupaonice sa WC-om ukupne površine 88 m2 i potkrovlje rohbau ukupne površine 52 m2. Nekretnine je smještena u sporednoj mirnoj ulici, nadomak Bukovačke ceste, svega nekoliko minuta autom od Maksimira (2km). Vlasništvo uredno, moguća kupnja putem kredita banke. ID NEKRETNINE: 1104 Za dodatne informacije na +385 99 556 6655 Karlo info@k2nekretnine.com K2 NEKRETNINE Qbat studio d.o.o.
info@k2nekretnine.com
Ravenečki vinogradi 4, 10040 Zagreb