

| Grad/Općina i naselje: | Podsused - Vrapče - Gajnice |
|---|
| Sustav grijanja | Etažno plinsko centralno |
|---|---|
| Broj kupaonica | 2 |
| Broj soba | 4-sobni |
| Kat | 3. |
| Podaci o objektu | Novogradnja, Gradski plin, Gradski vodovod, Gradska kanalizacija, Struja |
| Balkon/Lođa/Terasa | Balkon |
| Dozvole i potvrde | Građevinska dozvola |
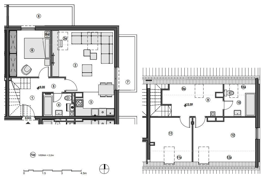
Prodaje se stan u lijepoj novogradnji u Gajnicama, na odličnoj lokaciji u blizini mnogih trgovina, škola, vrtića, ugostiteljskih objekata, parka, crkve... Ovaj dvoetažni stan se nalazi na 3. katu. Sastoji se od donjeg kata (ulazni hodnik, kupaona, dnevni boravak s kuhinjom i blagovaonom, spavaća soba i 2 balkona) i gornjeg kata (hodnik, kupaona i 2 spavaće sobe). Grijanje centralno etažno, radijatori, na gradski plin. Ugrađuje se priprema za klimu. Obavezna je kupnja vanjskog parkirnog mjesta i kupnja spremišta. Uredno vlasništvo i papiri gradnje. Cijena je 3300 €/m2 za avansnu uplatu, odnosno 3500 €/m2 putem kredita. ID KOD AGENCIJE: 7432 Andrea Zeneral Mob: 099 673 1949 Tel: 051/301-502 E-mail: andrea@sretnistanovi.hr www.sretnistanovi.hr Sretni stanovi d.o.o. Mob: +385 91 311 7269 Tel: 051/301-502 E-mail: info@sretnistanovi.hr www.sretnistanovi.hr
andrea@sretnistanovi.hr
Pul Vele crikve 1, 51000 Rijeka